构筑物专项施工方案
工程名称:观澜茜坑水厂深度处理工程
编制人(签字):
审核人(签字):
施工单位:中铁上海工程局集团有限公司
编制日期:2021年5月
目录
1、编制依据、原则及范围1
1.1编制依据1
1.2编制原则1
1.3编制范围2
2、工程概况2
2.1工程总体概况2
2.2本工程范围及主要内容、主要工程数量2
2.3工程参建单位3
2.4自然条件3
2.5施工条件6
3、施工部署及生产组织机构7
3.1生产组织机构7
3.2施工部署8
4、方案比选8
4.1脚手架方案8
5、施工计划9
5.1工序时间分析9
5.2施工进度计划9
6、资源配置9
6.1劳动力配置9
6.2主要周转材料配置9
6.3主要机械配置10
6.4仪器配置10
7、施工准备11
7.1技术准备11
7.2材料准备11
7.2.1钢筋的检验与存放11
7.2.2混凝土原材料控制12
8、施工工艺及质量验收标准14
8.1钢筋工程14
8.1.1钢筋加工14
8.1.2钢筋绑扎与安装15
8.2钢筋连接19
8.2.1钢筋机械连接19
8.2.2钢筋电弧焊23
8.3模板工程26
8.3.1基本资料26
8.3.2施工缝设置及底板模板支设27
8.3.3池壁模板支设28
8.3.4顶板、梁模板30
8.3.5模板的拆除30
8.3.6模板施工质量要求31
8.4混凝土工程32
8.4.1施工缝划分及处理32
8.4.2混凝土浇筑及施工顺序33
8.4.4水平施工缝、加强带施工34
8.4.5混凝土浇筑振捣注意事项34
8.4.6混凝土收光35
8.4.7施工质量保证措施35
8.4.8混凝土养护36
8.4.9防止混凝土分层离析的措施36
8.4.10模板监控36
8.5脚手架工程36
8.5.1基本要求36
8.5.2使用荷载37
8.5.3扣件式钢管脚手架搭设37
8.5.4相关安全操作规程37
9、质量保证措施39
9.1质量保证体系39
9.2质量保证措施40
10、安全保证措施41
10.1安全保证体系41
10.2安全保证措施41
11、文明施工与环保42
11.1组织机构42
11.2文明施工措施42
11.3环水保措施45
11.3.1环境保护体系45
11.3.2环境保护措施46
12、成品及半成品保护措施48
13、季节性施工技术措施49
13.1夏季施工49
13.2雨季施工49
13.3防汛、防台施工50
14、应急预案及应急响应50
14.1项目应急组织机构50
14.2日常检查和演习52
14.3重大危险源分析52
14.4应急救援措施53
14.4.1起重吊装安全应急预案53
14.4.2火灾、爆炸等消防应急预案53
14.4.3防汛防台应急预案56
14.4.4高处坠落事故预防及应急预案56
14.4.5发生触电事故应急预案57
14.4.6突发事件应急处理程序59
观澜茜坑水厂深度处理工程
构筑物专项施工方案
1、编制依据、原则及范围1.1编制依据(1)《中华人民共和国建筑法》
(2)《建设工程项目管理规范》(GB/T50326-2017)
(3)《给水排水构筑物施工及验收规范》(GB50141-2008)
(4)《混凝土结构工程施工质量验收规范》(GB50204-2015)
(5)《钢筋机械连接技术规程》(JGJ107-2016)
(6)《建筑物抗震构造详图》(11G329-1)
(7)《钢筋混凝土用热扎带肋钢筋》(GB1499-2007)
(8)《钢筋焊接及验收规程》(JGJ18-2012)
(9)《砼结构施工图平面整体表示方法制图规则和构造详图》(16G101-1,2,3)
(8)《混凝土结构钢筋排布规则与构造详图》(18G901)
(9)《混凝土外加剂应用技术规范》(GB50119-2013)
(10)《混凝土质量控制标准》(GB50164-2011)
(11)《建筑施工扣件式钢管脚手架安全技术规范》(JGJ130-2011)
(12)《建筑施工高处作业安全技术规范》(JGJ80-2016)
(13)《建筑施工模板安全技术规范》(JGJ162-2008)
(14)《建筑施工安全检查标准》(JGJ59-2011)
(15)《危险性较大的分部分项工程安全管理办法》(中华人民共和国住建部令第37号)
(16)《中铁上海工程局集团质量、环境、职业健康安全管理体系程序文件汇编》
(17)观澜茜坑水厂深度处理工程《可行性研究报告》、施工图纸
(18)设计交底资料、施工调查资料和设计文件审核资料
1.2编制原则(1)认真贯彻执行国家方针、政策、标准和设计文件,严格执行基本建设程序,实现项目的全部功能。
(2)严格执行深圳市建设行政主管部门对项目施工的文明、环保、安全、卫生健康等有关管理条例的要求,树立良好的工程形象和社会形象;
(3)根据现场实际情况及业主要求,本方案按照安全可靠、经济合理、提高工效、降低成本、环保节能等原则进行编制。
1.3编制范围本方案适用于观澜茜坑水厂深度处理工程格栅井及预臭氧接触池(一期)、格栅井及预臭氧接触池(二期)、提升泵房及后臭氧接触池、活性炭滤池、反冲洗泵房及废水回收池组合体、臭氧发生间、液氧站等6座构筑物主体结构工程施工。明确施工组织部署、各道工序的工艺流程、质量检验标准、安全管理措施,确保本工程施工过程中的安全、质量、进度受控。
2、工程概况2.1工程总体概况本工程位于深圳市龙华区福城街道田茜路观澜茜坑水厂预留地内,观澜茜坑水厂深度处理工程总规模为30万m3/d,其中一期深度处理工程规模15万m3/d,二期深度处理工程规模15万m3/d,按20万m3/d校核。

图2.1-1观澜茜坑水厂深度处理工程俯视图
2.2本工程范围及主要内容、主要工程数量工程范围及内容:深度处理工程包含新建格栅井及臭氧接触池、提升泵房及后臭氧接触池、活性炭滤池、反冲洗泵房及废水回收池组合体、臭氧发生间、液氧站及加药间改造。
表2.2-1工作范围及内容
序号
构筑物
设计规模及分组
1
格栅井及预臭氧接触池(一期)
15万m³/d规模
2
格栅井及预臭氧接触池(二期)
15万m³/d规模,按20万m³/d规模校核
3
提升泵房及后臭氧接触池
30万m³/d规模,按35万m³/d规模校核1座
4
活性炭滤池反冲洗泵房
30万m³/d规模,按35万m³/d规模校核1座
5
臭氧发生间
50万m³/d土建规模,设备规模35万m³/d
6
液氧站
35万m³/d规模
7
加药间改造
/
主要工程数量:主要新建设施占地面积7068.43m²,建筑面积2902.78m²,其中提升泵房及后臭氧接触池建筑面积365.94m²,活性炭滤池建筑面积2266m²,臭氧发生间建筑面积270.84m²。
表2.2-2主要工程数量表
序号
项目名称
工程量
1
挖土方
70187.39m³
2
回填土方
18430.07m³
3
弃土方
51757.32m³
4
钢筋
1800t
5
模板
45000㎡
6
直螺纹套筒
20000个
7
绿化
30857㎡
8
混凝土工程
17000m³
2.3工程参建单位序号
单位
单位名称
项目负责人
联系电话
1
建设单位
深圳市深水龙华水务有限公司
袁志
2
设计单位
中国市政工程中南设计研究总院有限公司
戴仲怡
3
监理单位
深圳市鲁班建设监理有限公司
贾红太
4
勘察单位
建设综合勘察研究设计院有限公司
乔振华
5
施工单位
中铁上海工程局集团有限公司
琚兆勇
2.4自然条件(1)地形地貌
本场地位于深圳市龙华区观澜茜坑水厂内,通过既有道路进出现场,交通较为便利。根据区域地质资料以及现场调查,本场地原始地貌为冲沟、坡地,场地位于现状茜坑水厂内南侧,目前为空地,场地地表局部不均匀,堆填有较多建筑垃圾。场地填土均为近期堆填,回填时间约为2~4年,尚未完成自重固结。场地内地势较平整,最大相对高差9.75m。
(2)地质情况
根据勘察揭露,场地内地层自上而下大体可分为三大层,上覆第四系人工填土层(Qml)、第四系坡洪积层(Qdl+pl)、第四系冲洪积层(Qal+pl)、残积层(Qel),下伏基岩为白垩系粗粒花岗岩风化带(K1)。各地层特征详述如下:
①第四系人工填土层(Qml),
人工填土(层序号1):黄褐、灰黄等杂色,稍湿,松散状态,以黏性土及石英砂砾夹约20%~30%的建筑垃圾块、花岗岩质碎块石组成,硬块直径一般2~8cm,最大超过30cm。该层在场地除2、3、5、6、13、14号钻孔外,其余钻孔均有揭露,厚度在0.70~11.30m。场地填土回填时间约为2~4年,堆填期间未进行压实处理,尚未完成自重固结。岩芯采取率80%~90%。现场标准贯入试验25次,实测击数6~11击,平均8.6击。
②第四系坡洪积层(Qdl+pl)
含砾黏土(层序号2-1):褐黄色,不均匀含少量砂砾,可塑状态,不均匀含较多石英角砾。场地内10、12~14、17号钻孔有揭露,厚度3.70~8.70m,层顶埋深0.00~5.10m,层顶标高51.48~56.39m。岩芯采取率90%~95%。现场标准贯入试验8次,实测击数9~19击,平均13.7击。
③第四系冲洪积层(Qal+pl)
粉质黏土(层序号3-1):黄褐、浅黄色,湿,可塑状态,不均匀含少量中细砂。场地内10、12、15、16、18~21、23~26号钻孔有揭露,厚度0.50~6.90m,层顶埋深3.50~12.20m,层顶标高44.43~52.78m。岩芯采取率90%~100%。现场标准贯入试验15次,实测击数8~20击,平均12.2击。
中砂(层序号3-2):浅灰、灰黄色,饱和,砂为石英质,分选性较差,呈次圆-次棱角状,不均匀含少量黏性土,稍密-中密状态。场地内15、16、18、19、21~23号钻孔有揭露,厚度1.20~2.90m,层顶埋深4.60~9.50m,层顶标高46.92~51.68m。岩芯采取率80%~90%。现场标准贯入试验6次,实测击数11~15击,平均13.0击。
④第四系残积层(Qel)
砾质黏性土(层序号4):褐红、褐黄色,部分灰白色,由粗粒花岗岩风化残积而成,原岩结构仍可辨,除石英砂砾外,其它矿物均已风化成黏性土,可塑-硬塑状态,不均匀含20%-40%的石英砾。场地内除10、19、20、23~26号钻孔外,其余各个钻孔均有揭露,厚度0.90~13.00m,层顶埋深0.00~12.40m,层顶标高44.02~61.98m。岩芯采取率85%~95%。现场标准贯入试验21次,实测击数15~36击,平均26.5击。
(3)水文状况
本地区的水文特征受大气降水的影响表现为:汛期由暴雨引发洪水,降水强度大,产生坡面径流量大,汇流时间短,枯水期降雨量小,坡面径流量少,利于工程建设施工。
深圳多年平均降水量为1966.3mm,最少雨年份1963年为910.03mm,最多雨年份1975年为2415.65mm。每年4~9月六个月为雨季,降雨量占全年降雨量的85.2%,其中7~8月份两个月的降雨量,占全年总降雨量的51.7%。11月至次年1月是一年之中雨量最少的季节,12月和1月的多年平均降雨量分别只有23.5mm和27.2mm。受地形和风向影响,降雨量由东南向西北递减,水厂处降雨量为1700~2000mm。
拟建场地位于茜坑水厂内,水厂北侧为茜坑水库溢洪道,为观澜河支流,现状溢洪道已经过综合治理,中下部采用直立式混凝土挡墙支护结构,中上部为自然放坡,坡面植草的支护型式;宽度约10~15m,常年流水,水深约1m,平时水量较小,汛期排洪水量较大,场地内地势相对溢洪道高,地表水对工程影响小。
(4)气象条件
深圳市属亚热带海洋性季风气候,气候温和;深圳市多年月平均气压为1009.8×102Pa,8月份最低为1002.0×102Pa,12月份最高为1017.4×102Pa;深圳多年平均气温22.5ºC,月平均气温以一月最低,为14.9ºC,极端最低气温0.5ºC;7月份最高,为28.6ºC,极端最高温度38.7ºC。平均全年无霜期为353~355天,霜冻几率很小。深圳地处低纬度地区,日照时间较长,太阳总辐射量较多。年总日照时数平均为1933.8小时,年内各月日照时数以7月和10月最多,2月、3月最少。年太阳辐射量平均为129.534kcal/cm2,各月总辐射量7、8月份最大,2月份最小,1月次之。
2.5施工条件(1)交通情况:施工场地位于观澜水厂内,场区离沈海高速约200m,材料及设备通过既有道路进行运输,道路两侧市政单位正在进行绿化整修,已将道路两侧进行封闭,无行人出入口,行驶安全;道路较为狭窄,平时车流量小,会车偏困难。

图2.5-1周边状况图
(2)管线及地表构建筑物:本工程位于水厂内预留规划用地,场地较为平整,四周封闭,红线用地范围内长有乔木及灌木,地表有部分硬化,离场区边界约530米有西坑水库一座。
(3)人文环境:根据深《深圳市建筑废弃物减排与利用条例》及龙华水务有限公司关于环保方面的要求,建筑垃圾必须编制建筑废弃物减排及处理方案,在工程项目开工前报建设部门备案。
通讯水电:施工及生活用水从水厂接入,前期临建期间可从水厂临时接入施工用电。后期根据设备配置情况及生活用电计算用电量,在龙华区供电局办理用电手续引入变压器。办公区办理通讯网络,通过网络、电话及对讲机保持人员通讯。
3、施工部署及生产组织机构3.1生产组织机构为确保优质高效地完成本合同段工程,项目经理部设五部二室:工程技术部、安全质量部、物资设备部、工程经济部、计划财务部、综合办公室和试验室。项目组织机构见图3.1-1。

图3.1-1组织机构图
项目经理:凡春胜受公司法人代表委托组建项目经理部,全面履行合同,对本工程的施工实施、保修负全责,组织编写施工组织设计。
常务副经理:琚兆勇对本工程的日常生产安排,包括施工进度、安全生产、文明施工和环境保护负责。
技术负责人:常兴起对本工程的技术方案的制定和实施、工程质量、验工计价负责,组织图纸会审,并负责与外部单位技术方面的协调沟通工作。
工程技术部:张龙编制技术交底;负责工程测量、量测、试验、隐蔽工程验收、安全质量和文明施工管理,配合设计、监理工作,开展质量活动;制订技术、安全、质量管理细则、措施,组织处理安全质量事故;管理变更洽商,管理技术档案;掌握工程进度,归纳分析进度影响因素、提出改进措施;组织技术难题攻关,检查指导现场技术工作;编制分期施工计划并监督执行;编制竣工文件,参加工程竣工验收。
安全质量部:肖勇负责安全质量技术措施的监督执行,现场安全质量监督检查、评比与考核,配合相关部门协调有关安全质量及检查、检验等工作。
工程经济部:阳标编制项目成本计划,确定、分解成本控制目标;办理验工计价和内部承包核算;负责合同管理、清算积累等事宜。
计划财务部:陈卓负责向业主提供按合同文件规定的证明文件,办理与业主间工程款的收付。
物资设备部:李龙负责本工程的物资和机械的采购、租赁、管理。
工地试验室:孙康康负责配合本工程的原材料、成品和半成品的检验。
综合办公室:潘舒负责对外联络、对内协调、文秘、人事劳资、治安保卫、内部行政事务、后勤保障等工作。
3.2施工部署(1)施工部署的原则
以项目经理部为核心,下辖各施工队伍及各班组,明确各自的权利和义务,确保施工任务的顺利完成。
(2)施工任务划分
表3.2-1施工任务划分表
序号
施工班组名称
施工内容
1
钢筋班组
负责构筑物钢筋加工制作及安装工作
2
木工班组
负责构筑物模板拼装加固及拆除工作
3
混凝土班组
负责构筑物各部位的混凝土浇筑振捣、抹面等工作
4
脚手架班组
负责构筑物的内外操作架的架体搭设工作
4、方案比选根据构筑物施工主要工序:底板钢筋→底板混凝土→池壁钢筋→池壁模板→顶板脚手架→顶板模板→顶板钢筋→顶板及池壁混凝土,对脚手架搭设方案进行比选。
4.1脚手架方案选型
构件数量
搭设效率
安全可靠性
市场保有量和经济对比
扣件式钢管脚手架
间距小,构件数量多,单根长度长
效率低
安全性最低,受人为因素影响大,搭设灵活但随意性强
市场保有量大,价格便宜,整体用量大
碗扣式脚手架
间距相对小,构件数量多,单根长度短
效率中等
安全性中等
市场保有量大,价格适中,整体用量大
盘扣式脚手架
间距可加大,构件数量少,单根长度短
效率高
安全性高
市场保有量少,价格较高,同比用量较少
通过比选,综合考虑本工程的特点,结合工程新技术推广考虑,本工程计划主要采用扣件式钢管脚手架,部分单体试点盘扣式脚手架,综合安全、质量、经济是最优的选择。
5、施工计划5.1工序时间分析考虑受恶劣天气等因素影响,每月有效施工时间按25天计算。
(1)模板:每个木工平均每天可以立模15㎡,本工程主体工程模板4.5万m2,计划3个月施工完成,折算后有效施工时间按75天计,平均每天需施工模板600㎡,平均每天需要木工40人。
(2)钢筋:每个钢筋工每天可以绑扎钢筋0.8t,本工程主体结构部分钢筋约1800t,计划2.5个月施工完成,折算后有效施工时间按63天计,平均每天施工钢筋28.6t,平均每天需要钢筋工36人。
(3)混凝土:本工程主体结构混凝土总量约1.7万m³,计划3个月施工完成,折算后有效施工时间按175天计,每天需施工213m³。计划配置两班混凝土浇筑工人,每班混凝土分两组,每组5人,需要混凝土浇筑工人20人。
5.2施工进度计划施工总进度计划见附件1:施工总进度计划网络图。
6、资源配置6.1劳动力配置投入构筑物主体施工的劳动力数量见表6.1-1。
表6.1-1劳动力投入计划一览表
工种
按工程施工阶段投入劳动力情况(按90天考虑)
管理人员
7
钢筋工
36
木工
40
混凝土工
20
架子工
14
合计
117
6.2主要周转材料配置投入构筑物主体施工的主要周转材料数量见表6.2-1。
表6.2-1主要周转材料数量表
序号
材料名称
规格型号
单位
暂定数量
质量等级
备注
1
模板
15mm
㎡
45000
合格
分包采购
2
钢管
φ48
m
150000
合格
分包采购
3
木方
80*80*1500
m³
300
合格
分包采购
4
对拉螺栓
三段式
根
70000
合格
分包采购
5
安全网
密目(绿色)
㎡
8000
合格
项目部自购
6.3主要机械配置投入构筑物主体施工的主要机械设备见表6.3-1。
表6.3-1主要机械设备一览表
序号
机械名称
数量(台)
型号
备注
1
砼振捣器
12
HZ50
2
平板振捣器
5
GJ7
3
汽车泵
4
43-57m
4
商品砼运输车
18
10m³
5
翻斗车
10
6
钢筋切断机
3
GQ40型
7
钢筋弯曲机
5
GW40
8
钢筋调直切断机
2
GJ4
9
电焊机
7
BX1-315
10
木工圆锯
3
MJ109
11
刨床
2
MB106A
12
手工钻
4
6.4仪器配置拟投入本项目构筑物主体施工时的主要仪器见表6.4-1。
表6.4-1主要仪器表
序号
名称
数量(台套)
型号
备注
1
测量设备
GPS
1套
中海达
2
全站仪
1套
TS09PLUS
3
水准仪
2套
SD3000
4
电子水准仪
1套
Dini03
5
对讲机
20台
7、施工准备7.1技术准备(1)熟悉图纸及规范,编制施工方案并进行技术交底,针对钢筋工程特点,考虑采用相应的技术措施,通过编制施工交底,将钢筋工程技术工作规范化、程序化,保证技术方案与技术措施的贯彻实施以有效地指导施工,组织项目部管理人员及外施队班组长认真学习)《钢筋焊接及验收规程》(JGJ18-2012)、《钢筋机械连接技术规程》(JGJ107-2016)、《混凝土结构工程施工质量验收规范》(GB50204-2015)、《砼结构施工图平面整体表示方法制图规则和构造详图》(16G101)等文件,并将技术传达到每个施工作业人员。
(2)直螺纹厂家技术人员提前进场,对施工队操作人员进行培训、考核,结业后颁发上岗证书,此外,厂家技术员在整个钢筋施工过程中应全程监督、指导。
(3)及时做好钢筋方案的技术交底,保证技术方案与技术措施能有效地指导施工。上道施工工序完成报验监理核查,对不合格的地方进行整改并通过监理验收合格后,方可进行下一步工序施工。钢筋原材做好进场复试和见证取样登记。
(4)模板体系直接影响混凝土施工的质量和安全,混凝土浇筑前应对模板体系仔细检查,纵肋标高,上、中、下混凝土内径尺寸,各构件螺栓连接质量、预埋件的安装,渠底等支撑体系的稳定性都应满足施工要求。
7.2材料准备7.2.1钢筋的检验与存放(1)钢筋进场应进行验收,检查质量保证书是否与钢材上打印的记号相符。每批钢材必须具备生产厂家提供的材质证明书,注明钢材的炉号、钢号、化学成分和机械性能等,可根据国家标准核对钢材的各项指标。检查钢材表面质量,不应有结疤、裂纹、折叠和分层及锈蚀等现象。经检验不合格的钢筋要立即退场,不得使用在工程中。在加工过程中发现钢筋脆断、焊接性能不良和机械性能不正常时,还应再次复试。当复试不合格时,必须退货。热轧钢筋的表面不得有裂纹、结疤和折叠。钢筋表面允许有凸块,但不得超过横肋的最大高度。严禁不合格钢材进入施工场地。
钢筋分项工程施工试验有关规定见下表:
表7.2-1钢筋取样规定表
试验内容
取样代表数量
取样规定
备注
钢筋原材
每一进场批次≤60t取一组
每批由同一牌号、同一炉号、同一规格的钢筋组成,且不大于60吨。
钢筋直螺纹接头
每规格1组3根拉件
施工前,按同批钢筋,同规格,同接头形式取1组
接头型式检验
500个接头3根拉件
同施工条件,同一批材料的同等级、型式、同规格接头500个为一验收批,不足500个也为一批
从每批接头中随机切取
单、双面搭接焊
每规格300个接头1组3根拉件
同施工条件,同一批材料的同等级、型式、同规格接头300个为一验收批,不足300个也为一批
从每批接头中随机切取
电渣压力焊
每规格300个接头1组3根拉件
同施工条件,同一批材料的同等级、型式、同规格接头300个为一验收批,不足300个也为一批
从每批接头中随机切取
(2)抗震等级:本工程构筑物结构抗震等级为二级。
(3)钢筋取样:由取样员根据试验操作规程及见证取样要求进行。
(4)为减少钢筋的变形和锈蚀,露天堆放钢筋,堆场四周设排挡水措施,钢筋下要用砖垛或方木垫起离地面30cm以上,分层码放时,中间用方木分隔,按型号挂牌,并应按规定对钢筋原材进行标识,对钢筋原材的标识分为四种状态:未检验、正在检验、检验合格、检验不合格。除标识为检验合格的可以使用外,其余标识钢筋不得乱用。
(5)已加工好的钢筋成品要按分段和构件名称编号堆放,并有明显标识,标识上注明应使用的构件名称、部位、钢筋规格型号、尺寸和根数。
(6)由专业人员进行钢筋放样,放样单要经过技术负责人审核,工程师审批后才允许进行加工,加工好后的钢筋需经质检人员复核后方可上作业面。
(7)垫块基础底板采用混凝土垫块(50mm),其余池壁等采用塑料定型垫块。钢筋马凳,钢丝刷,粉笔等材料齐备。
7.2.2混凝土原材料控制混凝土原材料须符合下列要求:
(1)水泥
水泥采用普通硅酸盐水泥,强度等级≥42.5。
a.采用低碱水泥,最大含碱量为3Kg/m³,相关规定应满足规范GB14902-2012的要求。
b.水泥中不得含有氯化物。
c.水泥各阶段的强度满足:3天抗折强度
4.0MPa,28天抗折强度7.0MPa,3天抗压强度22.0MPa,28天抗压强度50.0MPa。
(2)粉煤灰:符合GB1596-2005规定。
(3)细骨料
严格按照国家标准JGJ52-2006的技术要求进行控制,细骨料选用级配合理、质地均匀坚固、吸水率低、孔隙率的洁净天然河砂,配制混凝土时宜优先选用中砂。
(4)粗骨料
严格控制粗骨料,应选用级配合理、粒形良好、质地均匀坚固、线膨胀系数小的洁净碎石;
(5)水
混凝土拌制用水为饮用水;
(6)特殊情况下原材料控制
1)酷暑期混凝土施工
在酷暑期进行混凝土施工,夏季气温较高,混凝土入模温度也高,水化反应速度加快的同时,水化热也大,混凝土内部温度可达40℃~50℃,在混凝土强度增长期间水化热散去后,混凝土开始冷缩,由于温升大,冷缩也大,对于有约束的混凝土更容易出现温度裂缝,其次在高温干燥日子里,混凝土表面水分蒸发快,易出现表面干缩裂缝和失水现象。
酷暑期采用如下措施保证混凝土质量:
①混凝土入模温度控制在35℃以下,石料采取遮阳洒水;水加冰或使用冷水机降水温;减少运输时间保障及时入模;
②混凝土浇筑前,模板洒水,以降低模板的表面温度;
③酷暑期间混凝土按不同气温组配加入缓凝减水剂,使混凝土终凝时间不少6小时。在保证相邻浇筑的两层混凝土在终凝前接茬的前提下,尽量做到延长混凝土层与层之间的间隔浇筑时间,以使下层先浇筑的混凝土有足够的时间散发热量。可使水化反应速度减慢,水化热产生峰值下降,使混凝土温升变缓,从而避免产生混凝土裂缝;
8、施工工艺及质量验收标准8.1钢筋工程8.1.1钢筋加工(1)钢筋加工工序
钢筋除锈→钢筋调直→钢筋切断→钢筋加工成型。
1)钢筋除锈:钢筋生锈或染上油泥等污物,要用钢丝刷进行人工除锈,在除锈过程中如发现锈斑鳞落现象严重,并已损伤钢筋截面或除锈后发现钢筋表面有严重的麻坑、斑点、伤蚀截面时,该批钢筋作退场处理,不得使用。
2)钢筋调直:≤φ10盘条钢筋在使用前经过放盘、调直工序,φ12以上钢筋在轧制、运输、存放造成弯折,使用前进行调直处理。
3)钢筋切断:根据配料单复核钢筋种类、直径、尺寸、根数,将同规格钢筋根据不同长度进行长短搭配,统筹排料,先断长料后断短料,以尽量减少短头,减少损耗,断料时要避免用短尺量长料,防止在量料中产生累计误差,可在工作台上加尺寸刻度并加设控制断料尺寸用的卡板,钢筋的断口要求不得有马蹄形或起弯现象。
(2)钢筋加工措施
1)节点放样:根据结构施工图,利用计算机辅助设计做好钢筋节点放样,主要包括底板、池壁、墙、板钢筋的锚固构造;梁柱节点、梁梁节点、梁与板之间钢筋的穿插顺序;板柱节点部位配筋构造;墙体截面突变部位的钢筋布置;洞口加强筋的设置以及特殊构造部位节点。节点放样时分部位对各节点进行编号,通过节点放样进一步熟悉图纸,使一些特殊构造部位变得清楚明了,重点突出,使钢筋配料时不至于盲目无章。
2)填写配料单:根据配筋图及节点大样图,先绘制各种形状的单根钢筋简图并编号,然后分别计算钢筋下料长度和根数,填写配料单。配料单中标明钢筋部位。
(3)下料长度计算:钢筋下料长度计算时考虑弯起钢筋弯曲调正值的影响及弯钩增加长度,对于曲线构件钢筋,采用按理论公式计算和钢筋试加工校核的办法,确定钢筋的下料长度,当外型比较复杂,采用理论计算比较困难时,用放足尺(1:1)或放小样(1:5)的办法求钢筋长度。
(4)试加工:所有钢筋在大批量加工之前先进行试加工,检查钢筋形状、尺寸是否与配料单一致。并在加工过程中经常核对。
(5)材料利用:钢筋短料注意长短搭配,尽量减少钢筋截留损失。
(6)钢筋的弯钩或弯折应符合下列规定
a.Ⅰ级光圆钢筋末端要作180°弯钩,其弯钩内直径不应小于钢筋直径的2.5倍,弯钩的弯后平直长度不应小于钢筋直径的3倍。即弯钩内直径12为30㎜,10为25㎜,Ф8为20㎜。
b.箍筋末端的135°弯钩时,HRB335、HRB400级钢筋的弯弧内直径不应小于钢筋直径的4倍,即12为48㎜;平直长度为钢筋直径的10倍,即120㎜。
c.钢筋作不大于90°弯钩时,弯折处的弯弧内直径不应小于钢筋直径的5倍。
8.1.2钢筋绑扎与安装(1)钢筋保护层控制
底板钢筋保护层控制采用马凳筋和与结构混凝土同标号一级的垫块(并留置试块);墙筋采用梯形定位筋或塑料垫块控制保护层;梁板钢筋保护层采用与结构同标号混凝土垫块和定型马凳,间距600mm,呈梅花形布置。
底板、池壁、隔墙、梁、板钢筋交汇处,保护层厚度极难控制,施工前先做出放样图并定好绑扎顺序。
(2)钢筋间距控制
为了控制好底板钢筋上下位置关系以及底板与池壁之间、池壁与板之间以及隔墙与板之间的钢筋穿插,采取钢筋定位措施。
1)墙体钢筋
2)底板及顶板钢筋
对于底板及顶板上部的固定采用马凳,当上部钢筋较粗较密时,采用钢筋马凳能充分利用加工剩余短料,施工时根据实际情况综合考虑。
(3)底板钢筋绑扎
1)待底板、柱墩、墙体放线完毕,并办好预检送监理检验合格后,将查对好的成型钢筋用吊车运到基坑内,分部位按规格型号堆放。
2)底板钢筋绑扎,绑扎时由一端向另一端依次绑扎的顺序进行,操作时要按图纸要求的间距划线、铺铁、绑扎、最后成型。
3)钢筋的弯勾不能倒向一边,底板下层钢筋弯勾朝上,上层钢筋弯勾朝下;墙体的钢筋弯勾应朝向砼内且水平筋与立筋的位置按图施工。
4)底板的各层钢筋间应加设马凳,以保证钢筋的位置正确。
5)基础底板下部钢筋采用50mm×100mm的砼垫块,间距1m垫于钢筋下,来控制钢筋保护层厚度,侧面的垫块与钢筋绑牢,不应遗漏。
(4)柱筋绑扎
1)工艺流程:

2)施工要点
①放线:放出柱位置线,并在竖筋上抄测“50cm”线,作为钢筋竖向及分档标志。
②矫正钢筋:如出现钢筋位移采用以下方案处理。
③按图纸要求间距计算每根柱箍筋数量,先将箍筋套在下层伸出的搭接筋上,然后用电渣压力焊连接柱的立筋,接头位置应在受拉钢筋应力较小部位,并应互相错开,接头位置应在楼地面以上1.0m左右,焊接接头连接区段的长度为35d(d为纵向受力钢筋的较大直径)。
在竖筋上画好箍筋分挡线然后逐个箍筋由上而下绑扎,采用缠扣绑扎,箍筋与主筋要垂直,箍筋转角处与主筋交点均要绑扎,主筋与箍筋的非转角部分的相交点要梅花交错绑扎,箍筋的接头沿柱子竖筋交错布置,拉筋要钩住箍筋,垫块绑扎在竖筋外皮上@1000,确保保护层厚度符合设计及规范要求。
④柱子纵筋采用钢筋定位卡保证其位置,该定位卡在柱高范围内上、中、下各设置一道。
(5)梁钢筋绑扎
本工程梁采取放大样加工,以保证钢筋的位置准确。
1)模内绑扎

2)模外绑扎(先在梁模上口绑扎成型后再入模内):

①在梁侧模板上画筋间距、摆放箍筋。
②先穿主梁的下部纵向受力钢筋及弯起钢筋,将箍筋按已画好的间距逐个分开;穿次梁的下部纵向受力钢筋及弯起钢筋,并套好箍筋;放主次梁的架立筋;隔一定间距将架立筋与箍筋绑扎牢固;调整箍筋间距使间距符合设计要求,绑架立筋,再绑主筋,主次梁同时配合进行。
③绑梁上部纵向筋的箍筋,用套扣法绑扎。
④箍筋在叠合处的弯钩,在梁中交错绑扎,箍筋弯钩为135°。平直部分长度为10d,做成封闭箍时,单面焊长度为10d。
⑤梁端第一个箍筋设置在距离柱节点边缘50mm处。梁端与柱交接处箍筋要加密。
⑥在主、次梁受力筋下均垫砼垫块保证保护层厚度。受力筋为双排时,用短筋垫在两层钢筋之间,使钢筋排距符合设计要求。
⑦钢筋搭接
搭接长度应符合设计及规范要求;
搭接长度的末端与钢筋弯曲处的距离,不得小于钢筋直径的10倍;
接头不宜位于构件最大弯距处。受拉区域内Ⅰ级钢筋绑扎接头的末端应做弯钩(Ⅱ级可不做弯钩),搭接处应在中心和两端扎牢;
接头位置应相互错开,符合设计及规范要求。
(6)池壁、板钢筋安装(详细)
1)工艺流程:画位置线—→安装主筋—→安装分布筋。
2)清扫模板上刨花、碎木、电线管头等杂物。用粉笔在模板上划好主筋、分布筋位置。
3)按画好的位置,先摆受力主筋,后放分布筋、预埋件、电线管、预留孔等及时配合安装。
4)钢筋搭接长度、位置按规范规定要求。
5)池壁拉结筋采用Φ10一级圆钢,间距为60cm*60cm呈梅花状置放。
6)安装一般用顺扣或八字扣,除外围两根筋的相交点全部绑扎外,其余各点可交错绑扎(双向板相交点须全部绑扎),如板为双层钢筋,两层筋之间须加钢筋马凳,以确保上部钢筋的位置。
7)安装负弯矩钢筋,每个扣均要绑扎。最后在主筋下垫垫块。
(7)楼梯钢筋绑扎
1)工艺流程:

划位置线→绑主筋→绑分布筋→绑踏步筋
2)在楼梯底板上划主筋和分布筋的位置线。
3)根据设计图纸中主筋、分布筋方向,先绑扎主筋后绑扎分布筋,每个交点均要绑扎,如有楼梯梁时,先绑梁筋后绑板筋,板筋要锚固到梁内。
4)底板筋绑完,绑扎踏步钢筋,然后支踏步模板。主筋接头数量和位置均要符合施工规范的规定。
(8)墙体钢筋绑扎
1)先绑扎剪力墙暗柱钢筋,施工方法同柱子钢筋。
2)绑扎连接剪力墙纵筋及竖向梯子筋,先绑竖筋再绑纵筋,并在纵筋上画出水平筋分档线。
3)按分档线绑扎水平钢筋[从1.5米位置向下绑扎水平筋,再由1.5米位置向上绑扎水平筋(用“八”字扣)]和连梁钢筋,钢筋接头搭接长度为50d,两接头中心错开65d。
4)剪力墙墙体钢筋位置按照结构图施工。
5)在墙体上口两侧绑通长钢筋,以控制墙体插筋位置。
8.2钢筋连接8.2.1钢筋机械连接(1)钢筋直螺纹连接
1)直螺纹连接工艺流程为:钢筋原材料检验→钢筋直螺纹加工→直螺纹丝扣质量检验→安装丝扣保护套→复核并运输施工部位→钢筋连接→检查验收。
(2)直螺纹连接工艺要点
1)机具设备
①钢筋直螺纹滚丝机:钢筋直螺纹滚丝机型号:HGS-40B。
②扭力扳手:型号:PW360(管钳型);性能:100~360。
③量规:量规包括牙形规、卡规和直螺纹塞规。
2)直螺纹套筒的加工与检验。
①直螺纹套筒的尺寸,应与钢筋端头直螺纹的牙形与牙数匹配,并应满足承载力略高于钢筋母材的要求。直螺纹套筒的加工应在专业工厂进行;各种套筒的外表面,均有明显的钢筋级别及规格标记;套筒加工后,其两端直孔必须用与其相应的塑料密封盖封严。
②直螺纹套筒的验收,应检查:套筒的规格、型号与标记;套筒的内螺纹圈数、螺距与齿高;螺纹有无破损、歪斜、不全、锈蚀等现象。套筒检验的重要一环是用直螺纹塞规检查同规格套筒的加工质量,见示意图。当套筒大端边缘在直螺纹大端缺口范围内时,套筒为合格品。
③套筒须有检验报告、出厂合格证及抽检报告,钢筋套丝加工及接头连接须符合《钢筋机械连接技术规程》。

3)钢筋直螺纹的加工与检验
①钢筋下料时,应采用无齿锯切割,其端头截面应与钢筋轴线垂直,并不得翘曲。
将钢筋两端卡于套丝机上套丝。钢筋套丝所需的完整牙数见下表。套丝时要用水溶性切削冷却润滑液进行冷却润滑。对大直径钢筋要分次车削到规定的尺寸,以保证丝扣精度,避免损坏梳刀。
a.剥肋滚丝直螺纹接头所用的连接套筒采用优质碳素结构钢。
滚丝直螺纹接头的连接套筒分为标准型套筒、正反丝扣型套筒、变径型套筒、可调形套筒四种。
套筒出厂应有合格证。套筒在运输和储存中,应防止锈蚀和沾污。套筒及钢筋丝头根据《钢筋机械连接用套筒》(JGT163-2013)标准设计见下表:
表8.2-1钢筋机械连接用套筒规范单位(mm)
钢筋规格
套筒长度
套筒外径
螺纹直径
16
36
24.5
16.3
18
41
27.5
18.2
20
45
30.5
20.2
22
49
33
22.2
25
56
37.5
25.4
28
62
42
28.4
b.工艺流程:

c.钢筋丝头加工
加滚轧直螺纹接头施工的人员必须进行技术培训,经考核合格后方可持证上岗操作。
钢筋应先调直再加工,切口端面宜与钢筋轴线垂直,端头有弯曲、马蹄现象的应切去,不得用气割下料。
按钢筋规格所需的调整试棒调整好滚丝头内孔最小尺寸。
按钢筋规格更换定位盘,并调整好剥肋直径尺寸。
调整剥肋档块及滚轧行程开关位置,保证剥肋及滚轧螺纹的长度装卡钢筋,开动设备进行剥肋及滚压加工。
加工丝头时,应采用水溶性切削液,当气温低于0℃时,应掺入15~20%亚硝酸钠。严禁用机油做切削液或不加切削液加工丝头。
操作人员应按要求检查丝头的加工质量,每加工10个丝头用通、止环规检查一次,并剔除不合格丝头。
经自检合格的丝头,应由质检部、工程部随机抽样进行检验,以一个工作班内生产的丝头为一个验收批,随机抽检10%,且不得少于10个,并按要求填写钢筋丝头检验纪录表。当合格率小于95%时,应加倍抽检,复检中合格率仍小于95%时,应对全部钢筋丝头逐个进行检验,并切去不合格丝头,查明原因并解决后重新加工螺纹。
检验合格的丝头应加以保护,在其端头加带保护帽或用套筒拧紧,按规格分类堆放整齐。
d.操作要点
钢筋就位:将丝头检验合格的钢筋(丝扣干净、完好无损)搬运至待连接处。
接头拧紧:连接钢筋时,钢筋规格和套筒的规格必须一致,钢筋和套筒的丝扣应干净、完好无损。接头的连接用力矩扳手进行施工。将两个钢筋丝头在套筒中间位置相互顶紧,接头拧紧力矩应符合下表规定。力矩扳手的精度为士5%。

图8.2-1标准型接头连接施工
作标记:经拧紧后的滚压直螺纹接头应作出标记与未拧紧的接头区分开。单边外露丝扣长度不应超过2个丝扣。
施工检验:对施工完的接头进行的质量检验,允许完整丝扣外露为1-2扣。
套丝完成,并经质量检查合格的钢筋称为半成品。对半成品应采取严格的保护措施,这是钢筋等强度剥肋滚压直螺纹连接成功的关键。施工中我们主要采取两种方法进行保护:
分层码放。用薄竹板或木片放在上下两层钢筋之间,使每层钢筋之间都有一定的距离不互相碰撞。
带帽保护。用专用的钢筋丝头保护帽(塑料材质)对钢筋丝头进行保护,防止螺纹被磕碰或被污物污染。
e、现场检验
现场检验应进行拧紧力矩检验、接头外观质量检查和单向拉伸试验。
①用力矩扳手按规定的接头拧紧力矩值抽检接头的施工质量。抽检数量为:梁、柱构件按接头数的15%,且每个构件的接头抽检数不得少于一个接头;基础、墙、板构件,每100个接头为一个验收批,不足100个也作为一个验收批,每批抽检3个接头。抽检的接头应全部合格,如有一个接头不合格,则该验收批应逐个检查并拧紧。
②钢筋直螺纹的检查:对已加工的丝扣端要用牙形规及卡规逐个进行自检,见示意图。要求钢筋丝扣的牙形必须与牙形规吻合,小端直径不超过卡规的允许误差,丝扣完整牙数不得小于规定值。不合格地丝口,要切掉后重新套丝。然后要有质检员按3%的比例抽检,如有一根不合格,要加倍抽检。
③直螺纹检查合格后,一端拧上塑料保护帽,另一端拧上钢套筒与塑料封盖,并用扭距扳手将套筒拧至规定的力矩,以利保护与运输。
(4)直螺纹钢筋的连接与检验
①连接钢筋前,将下层钢筋上端的塑料保护帽拧下来,露出丝扣,并将丝扣上的水泥浆等污物清理干净。
②连接钢筋时,将已拧套筒的上层钢筋拧到被连接的钢筋上,并用扭力扳手按下表规定的力矩值把钢筋接头拧紧,直至扭力扳手在调定的力矩值发出响声,并随手画上油漆标记,以防有的钢筋接头漏拧。力矩扳手每半年应标定一次。
表8.2-2接头拧紧力矩
钢筋直径(㎜)
16
18
20
22
25~28
扭紧力矩
118
145
177
216
275
③钢筋拧紧力矩的检查:首先目测已做油漆标记的钢筋接头丝口,如发现有一个完整丝口外露,应重新拧紧或进行加固处理。然后用质检用的扭力扳手对接头质量进行抽检,抽检数量对梁、柱构件为每根梁、柱1个接头;对板、墙、基础构件为3%(但不少于3个)。抽检结果要求达到规定的力矩值。如有一种构件的一个接头达不到规定值,则该构件的全部接头必须重新拧到规定的力矩值。
④钢筋接头强度的检查:在正式连接前,按每种规格钢筋接头每300个为一批,做3个接头试样,做拉伸试验。当接头试件达到下列要求时,即为合格接头:
a.屈服强度实测值不小于钢筋的屈服强度标准值;
b.抗拉强度实测值与钢筋屈服强度标准值的比值不小于1.35倍,异径钢筋接头以小直径抗拉强度实测值为准。
c.如有一个直螺纹套筒接头不合格,则该构件全部接头采用电弧贴角焊缝方法加以补强,焊缝高度不小于5㎜。
(5)钢筋连接的组批原则及取样规定
①工艺检验:
在正式施工前,按同批钢筋、同种机械连接形式的接头试件不少于3根,同时对应截取接头试件的母材,进行抗拉强度试验。
②现场检验:
接头的现场检验按验收批进行,同一施工条件下采用同一批材料的同等级、同形式、同规格的接头每500个接头为一验收批,不足500个接头也按一批计,每一验收批必须在工程结构中随机截取3个试件做单向拉伸试验,在现场连续检验10个验收批,其全部单向拉伸试件一次抽样均合格时,验收批接头数量可扩大一倍。
截取的部位的钢筋,能替换的重新换掉,不能替换的采用帮条焊接方法加以补强。
8.2.2钢筋电弧焊(1)施工准备
1)材料要求
钢筋:钢筋的级别直径必须符合设计要求,有出厂合格证及复试报告单。
焊条:焊条的牌号应符合设计规定。焊条应分类、分牌号放在通风良好、干燥的仓库保管好。焊条质量应符合以下要求:
①药皮应无裂缝、气孔、凹凸不平等缺陷,并不得有肉眼看得出的偏心度。
②焊接过程中,电弧焊应燃烧稳定,药皮溶化均匀,无成块脱落现象。
③焊条必须根据说明书的要求烘干后才能使用。
④焊条必须有出厂合格证。钢筋电弧焊使用的焊条牌号见下表:
E43用于HPB300级钢筋互焊
2)主要机具:
弧焊机、焊接电缆、电焊钳、面罩、堑子、榔头、钢丝刷等。
(2)操作工艺
1)工艺流程
检查设备→选择焊接参数→试焊作模拟试件→送试→确定焊接参数→试焊→质量检验。
2)检查设备:检查电源,焊机及工具。焊接地线应与钢筋接触良好,防止因起弧而烧伤钢筋。
3)选择焊接参数:根据钢筋级别、直径、接头形式和焊接位置,选择适宜的焊条宜径、焊接层数和焊接电流,保证焊缝与钢筋溶合良好。
4)试焊作模拟试件:在每批钢筋正式焊接前,应焊接3个模拟试件做拉力试验,经试验合格后,方可按确定的焊接参数成批焊接。
5)施焊操作
①引弧:带有垫板或帮条的接头,引弧应在钢板或帮条上进行。无钢筋垫板或无帮条的接头,引弧应在形成焊缝的部位,防止烧伤主筋。
②定位:焊接时应先焊定位再施焊。
③运条:运条时直线前进、横向摆动和送进焊条三个动作要协调平稳。
④收弧:收弧时,应将熔池填满,拉灭电弧时,应将熔池填满,注意不要在工作表面造成电弧擦伤。
⑤多层焊:如钢筋直径大,需要进行多层试焊时,应分层间断试焊,每焊一层后,应清渣再焊接下一层。应保证焊缝的高度和长度。
⑥溶合:焊接过程中应有足够的熔深。主焊缝与定位焊缝应结合良好,避免气孔、夹渣和烧伤缺陷,并防止产生裂缝。
⑦平焊:平焊要注意熔渣和铁水混合不清的现象,防止熔渣流到铁水前。熔池应控制成椭圆形,一般采用右焊法,焊条与工作表面成70°。
6)钢筋搭接焊
①钢筋搭接焊适用于Ⅰ、Ⅱ、Ⅲ级钢筋,焊接时宜采用双面焊,不能采用双面焊时,也可采用单面焊,搭接长度与帮条长度相同。
②搭接接头的焊缝厚度应不小于0.3d,焊缝宽度b不小于0.7d。
③搭接焊时,钢筋的装配和焊接应符合下列要求:
a.搭接焊时,钢筋应预弯,以保证两钢筋的轴线在一条轴线上。
b.搭接焊时,用两点固定,定位焊缝应离搭接端部20mm以上。
c.焊接时,引弧应在搭接钢筋的一端开始,收弧应在搭接钢筋端头上,弧坑应填满。第一层焊缝应有足够的熔深,主焊缝与定位焊缝,特别是在定位焊缝的始端与终端,应溶合良好。
(3)质量标准
1)钢筋的品种和质量,焊条的牌号、性能及接头中使用的钢板和型钢,均必须符合设计要求和有关标准的规定,有材质及产品合格证书和物理性检验报告,对于进口钢材需先经过化学成份检验和焊接试验,符合有关标准后方能使用。
2)钢筋的规格、焊接接头位置,同一截面内接头的百分比,必须符合设计要求和施工规范的规定。
3)弧焊接头的强度检验必须合格。
4)接头焊缝表面平整,不得有较大的凹陷、焊瘤;接头不得有裂缝。
5)允许偏差,见下表:
表8.2.3电弧焊允许偏差
偏差项目
单位
允许偏差值
帮条焊接头中心纵向偏差
d
0.5d
接头处钢筋轴线的弯曲
°
4°
接头处钢筋轴线的偏移
d
0.1d或3mm
焊缝厚度
d
+0.05d,0
焊缝宽度
d
+0.1d,0
焊缝长度
d
-0.05d
咬肉深度
mm
0.5
焊缝表面上气孔和夹渣
①在两个d长度上不得多于
②直径不得大于
个或(mm2)
个或(mm2)
2或(6)
2或(6)
(4)应注意的质量问题
1)焊接过程总要及时清渣,焊缝表面光滑平整,加强焊缝平缓过渡,弧坑应填满。
2)根据钢筋级别、直径、接头形式和焊接位置,选择适宜焊条直径和焊接电流,保证焊缝与钢筋溶合良好。
3)焊接地线应与钢筋接触良好。防止因起弧而烧伤钢筋。
4)钢筋临时性弧焊时不能忽视因焊接而引起的结构变形,应采取下列措施:①对称试焊,②分层轮流试焊,③选择合理的焊接顺序。
(5)产品保护
1)现场试焊应注意对已绑扎好的钢筋骨架的保护,不乱踩乱拆,不粘油污,在施工中拆乱的骨架要认真修复,保证钢筋骨架总各种钢筋位置的正确。
2)焊接半成品不能浇水冷却,待冷后方能移动,并不能随意抛掷。
8.3模板工程8.3.1基本资料(1)模板的基本尺寸
模板固定用直径14mm的对拉螺栓、“3”型扣件及钢架管加固成一个整体。模板选用1830mm*915mm*14mm木模板。
模板支设均采用木模板钢支撑,内外侧均为Ф48.5×3.6钢管纵向间距450mm,横向间距600mm,内外壁模板对称设置,对拉螺栓每侧双螺帽,双面型扣件(小号)呈450×600mm分布。
(2)材料的性能
砼的重力密度:25kN/m³;砼浇筑时温度:25℃;砼浇筑速度:0.6m/h;掺外加剂。
木模板容许应力为14.5Mpa。
(3)计算荷载
对模板产生侧压力的荷载主要有三种:
1)振动器产生的荷载:4.0kN/m²;或倾倒混凝土产生的冲击荷载:4.0km/m²;二者不同时计算。
2)新浇混凝土对模板的侧压力;
荷载组合为:强度检算:1+2;刚度检算:2(不乘荷载分项系数)
3)模板结构自重,机具、设备按实计算,施工人员按1.0kN。
①砼对模板最大侧压力
计算式一:F=0.22γct0β1β2V1/2
=0.22×24×2×1.2×1.15×11/2=29.15kN/m²
计算式二:F=γcH=24×6.45=154.80kN/m²
式中:γc—砼重力密度(kN/m³);
t0—砼初凝时间(h),取2h;
V—砼浇灌速度(m/h),取1m/h;
β1—外加剂影响修正系数,缓凝时取1.2;
β2—砼塌落度影响修正系数,取1.15;
H—砼浇灌高度;
有效压头高度:h=F/γc=1.05m
两者取最小值,故新浇混凝土对侧模最大压力为29.15kN/m²,考虑混凝土施工对模板产生的施工荷载4kN/m²,为并取荷载分项系数,作用于模板的总荷载为:
q=29.15×1.2+4×1.4=40.58kN/m²
对拉螺栓按0.6m×0.4m布置,则每根承受的拉力为:
P=q•A=40.58×0.45×0.6=10.95kN
经查对拉螺栓力学性能表,选用M14对拉螺栓,
表8.3-1对拉螺栓力学性能表
螺栓直径(mm)
螺纹内径(mm)
净面积(mm2)
重量(kg/m)
容许拉力(N)
M12
M14
M16
9.85
11.55
13.55
76
105
144
0.89
1.21
1.58
12900
17800
24500
M18
M20
M22
14.93
16.93
18.93
174
225
282
2.00
2.46
2.98
29600
38200
47900
其容许拉力为:12900N>10950N,对拉螺栓的强度满足要求。
8.3.2施工缝设置及底板模板支设本工程构筑物水平缝施工缝设置在底板面以上900mm处,底板与900mm池壁砼同时浇筑。
为保持砼浇筑整体性,尽量少设施工缝。此处模板架设在池壁立筋焊出的短钢筋头上。首先在池壁立筋上找出底板水平线,每隔1m在立筋水平线处焊出钢筋头,模板架设在钢筋头上,用对拉螺栓固定。对拉螺栓采用M14圆台形塑料顶帽专用止水钢拉件,每侧双螺帽。对拉螺栓及底板模板吊模支护详见下图。

图8.3-1止水对拉螺栓示意图

图8.3-2底板模板吊模示意图
8.3.3池壁模板支设构筑物池壁模板采用木模板,全钢管对拉螺栓支承体系,内(竖)楞Φ48×3.5钢管间距250mm,外(横)楞2Φ48×3.5钢管间距600mm,内外壁模板对称设置,对拉螺栓采用M12圆台形塑料顶帽专用止水钢拉件,每侧双螺帽。双面型扣件(小号)呈450×600mm梅花状分布。对于圆弧形池壁模板,则将外(横)楞2Φ48×3.5钢管采用弯弧机按设计弧度弯成弧形,其余支撑方式与直线型模板相同。池壁模板支护见下图。

图8.3-3池壁模板支护示意图
池壁模板安装要点:
1)圆台形塑料顶帽止水对拉螺栓为较方便的一种池壁立模支撑件,模板拆除后取出顶帽,用防水砂浆封堵帽孔即可,为保证符合规范规定,顶帽厚度应为30mm,以便封堵止水螺栓孔时有足够的保护层厚度。
2)模板与砼接触面应刷脱模剂,以便保证拆模。
4)为加强模板的刚度,防止“3”型扣件受力过大而断裂,下部四层螺栓全部采用双“3”型扣件及双螺帽并点焊。
6)模板安装应与钢筋绑扎、工艺、水电安装等专业配合,确保预埋件、套管、预留孔、槽位置准确、牢固,不错漏。
8.3.4顶板、梁模板1)模板安装流程
①梁模安装流程:弹梁轴线并复核→搭支模架→摆方木→安放梁底模并固定→梁底起拱→扎梁筋→安侧模→对拉螺栓→复核梁模尺寸、标高、位置→与相邻模板连固。
②板模板安装工艺:搭支架→测水平→摆木楞→调整楼板模标高及起拱→铺模板→清理、刷油→检查模板标高、平整度、支撑牢固情况。
2)模板安装要点
纵横楞设置要与支撑架牢固结合,然后铺大面积模板,并与楞框架钉牢铺平。其安装要点如下:
①梁与顶板浇筑模板的支撑架要统一设计为一个整体,以分散主梁砼的重量。
②多层胶合板模板接缝应采用模板密封条封缝,保证砼面光滑。
③梁、板的安装要密切配合钢筋绑扎,积极为钢筋分项提供施工面。
④所有跨度≥4m的梁必须起拱1‰~3‰,防止挠度过大。
⑤所有≥2mm板缝必须用胶带纸封贴。
3)模板支架
板底模采用木模板,板底支撑采用40mm×100mm木方,中心间距250mm,扣件式钢管脚手架作为撑系统,支撑架排距0.8m,跨距0.8m,步距1.5m。
楼板底模板由钢支撑上的水平钢管、水平木方支撑,胶合板铺放在先摆设固定好的木楞方木上钉牢。标高控制,安装时由控制标高出拉通线和对角线。板跨度大于4m时起拱,高度为跨度的1/1000~3/1000。
8.3.5模板的拆除及时拆除模板将有利于模板周转和加快工程进度,拆模混凝土强度须符合规范要求。
拆模施工要点:除按照《砼结构工程施工及验收规范》中“模板拆除”规定要求外,还应注意:
①拆模时不要用力过猛过急,拆下来的木料、脚手架、模板及时运走、整理。
②拆模程序一般应是后支的先拆,先拆除非承重部分,后拆除承重部分。
③拆除跨度较大的梁下支柱,应先从跨中开始,分别拆向两端。
④模板要加强保护,拆除后逐块传递下来,不得抛掷,拆下后,即清理干净,板面刷脱模剂,按规定分类堆放整齐,以利再用。
8.3.6模板施工质量要求①模板及其支撑结构的材料、质量,符合规范规定和设计要求。
②模板及支撑有足够的强度、刚度和稳定性,并不致发生不允许的下沉与变形,模板的内侧面要平整,接缝严密,不得漏浆。
③模板安装后仔细检查各部构件是否牢固,在浇灌砼过程中要经常检查,如发现变形、松动等现象,要及时修整加固。
④现浇整体式结构模板安装的允许偏差应符合技术规范要求。
⑤固定在模板上的预埋件和预留洞均不得遗漏,安装必须牢固,位置准确。
⑥在浇灌砼前,重点检查下列内容:
a.扣件规格与对拉螺栓、钢楞的配套和紧固情况。
b.斜撑、支柱的数量和着力点。
c.各种预埋件和预留孔洞的规格尺寸、数量、位置及固定情况。
d.模板结构的整体稳定性。
表8.3-2现浇整体式结构模板安装的允许偏差表
项次
项目
允许偏差(mm)
1
轴线位置
5
2
底模上表面标高
±5
3
截面内部尺寸
(1)池壁、顶板(2)梁
±3
4
层高垂直
(1)全高≤5m(2)全高>5m
5,8
5
相邻板表面高低差
2
6
表面平整(2m长度上)
3
⑦预埋件及预留孔洞允许偏差详见下表。
表8.3.-3预埋件及预留孔洞允许偏差表
项次
项目
允许偏差(mm)
1
预埋钢板中心线位置
3
2
预埋管中心线位置
3
3
预埋螺栓
中心线位置
外露长度
2
+10,-0
4
预留孔中心线位置
3
5
预留洞
中心线位置
截面内部尺寸
5
+10,-0
⑧固定在模板上的预埋件和预留洞均不得遗漏,安装必须牢固,位置准确。
⑨在浇灌砼前,重点检查下列内容:
a.扣件规格与钢楞的配套和紧固情况。
b.斜撑、支柱的数量和着力点。
c.各种预埋件和预留孔洞的规格尺寸、数量、位置及固定情况。
d.模板结构的整体稳定性。
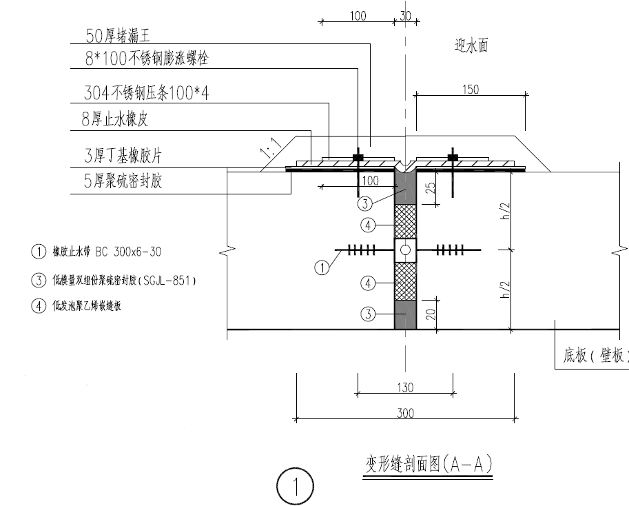
8.4混凝土工程8.4.1施工缝划分及处理根据设计要求,构筑物划分加强带和伸缩缝施工,伸缩缝采用CB300*6-30橡胶止水带、低发泡聚乙烯嵌缝板填充、并用聚硫密封胶进行封口处理。如下图所示:

图8.4-1底板伸缩缝详图
垂直施工缝采用止水钢板,规格为(高×厚)-300mm×3mm,钢板相接处采用搭接焊,搭接长度大于5cm,内外均需焊接,焊缝为满焊。

图8.4-2垂直施工缝详图
8.4.2混凝土浇筑及施工顺序(1)材料选择
本工程混凝土均采用商品混凝土,首先根据设计要求,对商砼的原材料及配合比进行验证,满足要求后报监理审批使用。
(2)混凝土浇筑注意事项:
底板砼与底板面以上900mm池壁整浇,施工缝采用3×300mm止水钢板,固定在池壁中部,浇筑时要保证混凝土连续浇筑。
1)高程、平整度控制:在砼振捣以后,由瓦工用2m长尺条整体拉平、找面、拍实;再依据标高桩找平,找平时保证砼面高出设计高程2~3mm,最后在砼初凝后,终凝前再依据高程控制点拉通线对砼面进行检查调整、抹平、压光。
2)池壁砼浇筑
①池壁混凝土浇筑前应对施工缝进行认真凿毛、清洗,并对模板进行湿润,施工缝处不得积水。
②池壁浇筑采用分层连续浇筑方法,每层最大浇筑深度控制在500mm以内,振动棒插入前次浇筑层深度不得大于100mm。振捣应分二次进行,一台振动棒跟随浇筑点移动,将混凝土摊平,另一台振动棒相隔6-8m沿浇筑方向做行列式振捣。
3)养护:砼浇筑完成,抹平压光后,立即用塑料薄膜加以覆盖保湿,防止砼凝固过程中生裂缝。砼终凝后洒水养护。
8.4.4水平施工缝、加强带施工主体缝的设置有水平施工缝、加强带两种形式。
(1)施工缝部位施工
①施工缝的设置:壁板水平施工缝采取3×300mm钢板止水带,留置在墙中部。
②施工缝处理
施工缝砼表面凿毛和冲洗干净,并保持湿润但无积水;浇筑前,施工缝处先铺一层与砼配合比相同的水泥砂浆,其厚度为15~30mm;浇筑砼时须细致捣实,使新旧砼紧密结合。
(2)加强带施工
1)带宽2.0m,带的两侧布置5mm的密孔钢丝网,将带内混凝土与带外混凝土分隔开,钢丝网垂直布置在上下层(或内外层)钢筋之间,两端分别绑扎在上下层(或内外层)钢筋上。
2)带内采用设计强度等级比相邻非加强带混凝土强度等级高一级的混凝土进行浇筑,外掺适量膨胀剂。
3)混凝土的浇筑采用连续施工方式施工。施工时,按计划开始从一侧浇筑混凝土,分层梯式前进,每层混凝土振捣密实,不得漏振或过振。加强带外混凝土采用小膨胀混凝土浇筑,当浇筑到加强带时采用上述配合比的混凝土施工,浇筑至另一侧时又改用小膨胀混凝土浇筑,如此循环下去,直至连续浇筑完毕。
8.4.5混凝土浇筑振捣注意事项(1)泵送混凝土浇筑入模时,要将端部软管均匀移动,使每层布料厚度控制在40㎝以内,不应成堆浇筑。
(2)混凝土分层铺设后应随即用插入式振动器振捣密实,1台泵车应配备4台振动器(其中2台备用)。使用50型插入式振捣棒要快插慢拔,插点呈梅花型布置,按顺序进行,不得漏振,移动间距不大于振捣棒作用半径的1.5倍,振捣上一层时插入下一层混凝土50㎜,以消除两层间的接缝。平板振动器的移动间距保证振动器的平板能够覆盖已振实部分的边缘。振捣时间以混凝土表面出现浮浆及不出现气泡、下沉为宜。
(3)泵送混凝土入模用端部软管经常均匀地移动,以防混凝土堆积,增加压送阻力而引起爆管。当浇筑墙板时,管口应放在墙模板中间,并采用引浆法浇捣。当混凝土浇到最后阶段时,对泵车采取“分段停泵”的办法。
(4)混凝土采取整体分层连续浇筑的方式,如遇特殊情况须间歇,间歇时间尽量缩短,不应超过2小时,并对搅拌站要求,砼罐车必须在施工现场打二停一,在下层混凝土初凝前将上层混凝土振捣完毕。
(5)浇筑混凝土时为防止混凝土分层离析,混凝土由泵管内卸出时,其自由倾浇高度不得超过2m,混凝土浇筑时不得直接冲击模板。
(6)浇筑混凝土时设专人看护模板,经常观察模板、支架、钢筋及预埋件和预留孔洞情况,当发生变形移位时立即停止浇筑,并在已浇筑的混凝土凝结前修整完好。
(7)泵送将结束时,应计算好混凝土需要量,以便决定拌制混凝土量避免剩余混凝土过多。
8.4.6混凝土收光混凝土表面应在其初凝前进行收光,采用收光机反复碾压,减小混凝土表面收缩性,提高混凝土的抗裂、抗渗性能。
8.4.7施工质量保证措施(1)原材料保证措施
1)严格控制集料的质量,粗细集料要送试验室进行检验,符合规范标准,配合比由试验室选定方可采用。外加剂的掺量通过试验决定;
2)外加剂的投加设专人计量,随水泥每盘同时加入搅拌机料斗并适当与水泥拌合后投入搅拌机;
3)严格控制水灰比,小于0.5;
4)水泥宜采用强度等级不低于42.5MPa的普通硅酸盐水泥。为降低水化热,水泥用量应进行严格控制;
5)振捣是关键,每一振点时间长短,应使混凝土表面呈现浮浆,不再下沉为止。此外,还必须保证振捣移动间距和插入深度符合施工规范的要求;
6)计量装置必须准确有效,开盘前要检验校正,中间要进行校核。项目部设专人与搅拌站联系沟通,做好质量监控;
7)施工缝处理按本方案设置钢板止水带;
8)酷暑期加强混凝土养护:混凝土浇筑完成后,在其表面采用塑料薄膜覆盖,保持薄膜湿润。
8.4.8混凝土养护混凝土浇筑完成12小时内,混凝土须采取相关养护措施,具体方法为施工缝处人工凿除浮浆后定时浇水养护,始终保持混凝土表面湿润,池壁混凝土养护采用在内模上挂塑料薄膜养护,养护期间应保持薄膜湿润。
8.4.9防止混凝土分层离析措施为保证混凝土不出现分层离析,必须将混凝土自由倾落高度控制在2m及其范围内。以及检查罐车运输过程中是否停留时间较长。
8.4.10模板监控在混凝土浇筑过程中,配备4~6人对模板进行巡视(每个落灰点内外模各配置1人,其余机动),发现变形,立即进行加固并报告现场副经理、技术人员。
8.5脚手架工程8.5.1基本要求脚手架搭设场地要有足够的面积,能满足工人操作、材料堆置和运输的需要。
脚手架搭设必须要牢固、稳定,能保证施工期间在各种荷载和气候条件作用下,不变形、不倾斜、不摇晃。搭拆简单,搬移方便,能多次周转使用。因地制宜,就地取材,节约用料。

图8.5-1扣件式钢管脚手架构成示意图

图8.5-2扣件式钢管脚手架脚手板连接示意图
8.5.2使用荷载以脚手板上实际作用的荷载为准。壁板外侧采用双排扣件式脚手架。壁板外侧模板脚手架主要用于人员上下行走、钢管及扣件搬运等工作的均使用荷载按照每平方米荷载不超过100kg;用于砌筑工程的均布使用荷载每平方米不超过270kg;用于装修工程荷载每平方米不超过200kg。脚手架的搭拆比较频繁,施工荷载变动性大,安全系数K为3。多立式的脚手架大、小横杆的允许挠度为杆长的1/150。
8.5.3扣件式钢管脚手架搭设本工程主要采用双排扣件式钢管脚手架,钢管材质使用Q235(3号钢)钢材,外径48mm、壁厚3.5mm的焊接钢管,具体搭设方案见脚手架专项施工方案。
8.5.4相关安全操作规程(1)高处作业施工安全规程
1)患有高血压、心脏病、癫痫病、贫血病等高处作业禁忌的人员,不得从事高处作业。
2)高处作业中的安全标志、工具、仪表、电器设施和各种设备,必须在施工之前加以检查,确认其完好方可投入使用。
3)高处作业必须戴好安全帽,系好安全带,穿好防滑鞋(俗称解放鞋),并保持鞋底干净,以防滑倒坠落。
4)施工作业场所有坠落可能的物件,应一律先行撤除或加以固定。高处作业中所用的物料,均应堆放平稳,不妨碍通行和装卸。工具应随手放入工具袋;作业中的走道、通道板和登高用具,应随时清扫干净;拆卸下的物件及余料和废料均应及时清理运走,不得任意乱置或向下丢弃。传递物件禁止抛掷。
5)脚踏板上的水、油污等均应及时清除。雨天进行高处作业时,必须采取可靠的防滑措施。遇有六级以上(包括六级)强风、浓雾等恶劣气候,不得进行露天攀登与悬空高处作业。台风暴雨后,应对高处作业安全设施逐一检查,发现有松动、变形、损坏或脱落等现象,应立即修理完善。
6)不得贪图方便,在模板、脚手架上攀登或随运料吊斗、吊篮等施工设备进行上下。
7)不得多人集中在作业平台上的某一部位进行作业,以防止突然断裂坠落伤人。
8)在有坠落可能的地方作业时,必须把安全带挂在牢固的结构上,安全带应高挂低用,带绳长度不应超过1.5米。
9)高处作业需跨越较大空隙时,应从设有安全措施的通道通过。不得在未固定的构件上行走或作业。
10)高处作业应按规定挂设安全网,网内不得有杂物,破损的安全网应及时更换。
11)酒后严禁从事高处作业。
(2)脚手架施工安全操作规程
1)所有进入施工现场的人员必须戴好安全帽,并按规定配戴劳动保护用品,或安全带等安全工具。
2)作业人员不得穿拖鞋、高跟鞋、硬底易滑鞋和裙子进入施工现场。
3)从事架子施工的人员,要取得特种作业操作证方能持证上岗;对进行模板施工,高度超过2米的架子要由架子工去完成。在距边缘1.2-1.5米处应设置护栏或架设护网,且不低于1.2米,并要求稳固可靠。
4)施工作业搭设的扶梯、工作台、脚手架、护身栏、安全网等,必须牢固可靠,并经验收合格后方可使用。
5)人员上下通行要由斜道或扶梯上下,不准攀登模板,脚手架、或绳索上下,并作好进入口等防护措施的管理。
6)作业用的料具应放置稳妥,小型工具应随时放入工具袋,上下传递工具时,严禁抛掷。进行两层或多层上下交叉作业时,上下层之间应设置密孔阻燃型防护网罩加以保护。
7)脚手架拆除时,经工程技术部门和专职安全员检查同意后方可拆除,并按自上而下,逐步下降进行;严禁将架杆、扣件、模板等向下抛掷。
8)在高空作业时,应配备工具袋,防止各种工具、零件、物料等坠落伤害他人。
9)在有坠可能的地方作业时,必须把安全带挂在牢固的结构上,安全带应高挂低用,带绳长度不应超过1.5m。
10)高处作业需跨越较大空隙时,应从设有安全网的地方通过,不得在未固定的构件上行走或作业。
11)酒后禁止从事高处作业。
9、质量保证措施9.1质量保证体系质量保证体系由项目经理凡春胜为质量总负责人,项目技术负责人常兴起组织实施。
质量保证体系的设置可使施工过程中有“法”可依,但关键是在于运转正常,只有正常运转的质保体系,才能真正达到控制质量的目的,整个质量保证体系又可分为施工质量管理体系、施工质量控制体系两大部分。
(1)质量保证体系的设置
质量保证体系是按科学的程序运转,其运转的基本方式是“PDCA”的循环管理活动,它是通过计划、实施、检查、处理四个阶段把经营和生产过程的质量有机地联系起来,而形成一个高效的体系来保证施工质量达到工程质量的保证。
首先,以我们提出的质量目标为依据,编制相应的分项工程质量目标计划,这个分目标计划使所有项目参与管理的全体人员均熟悉了解,做到心中有数。
其次,在目标计划制定后,各施工现场管理人员编制相应的工作标准交施工班组实施,在实施过程中进行方式、方法的调整,以使工作标准完善。
再次,在实施过程中,无论是施工工长还是质检人员均要加强检查,在检查中发现问题并及时解决,以使所有质量问题解决于施工之中,并同时对这些问题进行汇总,形成书面材料,以保证在今后或下次施工时不再出现类似问题。
最后,在实施完成后,对成型的建筑产品或分部工程分次成型产品进行全面检查,以发现问题。追查原因,对不同产生原因进行不同的处理方式,从“人、机、料、法、环”等方面进行讨论,并产生改进意见,再根据这些改进意见而使施工工序进入下次循环。
(2)施工质量管理体系
施工质量管理体系的设置及运转均要围绕质量管理职责、质量控制来进行的,只要当职责明确、控制严格的前提下,才能使质量管理体系落到实处。本工程在管理过程中,将对这两个方面进行严格的控制。
9.2质量保证措施施工质量保证措施是施工质量保证体系的具体落实,其主要是对施工各阶段及施工中各控制要素进行质量上的控制,从而达到施工质量目标的要求。
施工阶段性的质量控制措施主要分为三个阶段,并通过这三个阶段来对本工程施工进行有效的阶段性质量控制。
(1)事前控制阶段
事前控制是在正式施工活动开始前进行的质量控制,事前控制是先导。主要是指建立完善的质量保证体系、质量管理体系,编制《质量保证计划》,规定现场的各种管理制度,完善计量及质量检测技术和手段。对工程项目施工所需的原材料、半成品、配构件进行质量检查和控制,并编制相应的检验计划。
进行设计交底、图纸会审等工作,并根据本工程特点确定施工流程、工艺及方法。对本工程将要采用的新技术、新结构、新材料、新工艺均要审核其技术审定书及运用范围。检查现场的测量标桩,建筑物的定位线及高程水准点等。
(2)事中控制阶段
事中控制是旨在施工过程中进行的质量控制,主要有:
①完善工序质量控制,把影响工序质量的因素都纳入管理范围,及时检查和审核质量统计分析资料和质量控制图表,抓住影响质量的关键问题进行处理和解决。
②严格工序间交换检查,做好各项隐蔽验收工作,加强交检制度的落实,对达不到质量要求的前道工序绝不交给下道工序施工,直至质量符合要求。
③对完成的分部分项工程,按相应的质量评定标准和办法进行检查、验收。
④审核设计变更和图纸修改。
⑤如施工中出现特殊情况,隐蔽工程未经验收而擅自封闭、掩盖或使用无合格证的工程材料,或擅自变更替换工程材料等,项目总工程师有权向项目经理建议下达停工令。
10、安全保证措施10.1安全保证体系在本工程施工过程中,我们将运用科学的管理手段和模式,以安全为中心,制定以保证安全生产为目的的体系。落实安全生产体系以保证安全生产措施落实。安全生产体系是由安全生产制度及安全生产管理组成。
(1)安全生产制度
根据国家及地方有关文件规定,并结合本工程的实际情况制定安全生产责任制度、安全生产责任考核制度、安全生产资金保障制度、安全生产教育培训制度、安全生产检查制度、安全生产事故报告、处理制度安全技术交底制度、安全生产管理办法、奖惩办法和安全设备、设施验收制度。
(2)安全管理体系
安全管理体系是在明确安全生产职责和制度的前提下,所进行的综合管理活动,为确保安全管理体系的正常运转,在项目经理部建立以项目经理部为首的安全实施,以公司安质部为主的监督体系,两者合二为一,以形成本工程安全管理体系。
10.2安全保证措施(1)基坑的防护:根据现场情况在基坑的四面设置通长的防护栏,外挂密目安全网,基坑上口3m范围内不得堆放重物及行车。
(2)洞口的防护:洞口尺寸大于等于300mm均作防护,洞口小于1.5×1.5m时预埋通长筋或加固定盖板。
(3)楼梯踏步及休息平台防护:楼梯踏步及休息平台处设两道防护栏杆并挂安全网做防护。
(4)临边防护:无围护结构时,设两道防护栏杆,框架结构施工时沿作业层四周设2m高护栏并挂安全网。
(5)个人防护:进入施工现场所有人员戴好安全帽,凡从事两米以上高空作业,无法采取可靠防护设施的施工人员系好安全带,从事电气焊、剔凿等作业的人员要使用面罩或护目镜,特种人员持证上岗,并佩戴相应的劳动保护用品。
(6)施工作业时严禁在钢筋板墙上进行攀爬,两相邻作业平台高差较大时应采用钢管脚手架及扣件搭设简易爬梯,并设置防护栏杆。
(7)施工作业用电应遵守施工临时用电专项方案进行施工,电缆严禁在施工现场乱拉乱放,所有用电设备开关箱必须实行“一机一闸、一漏一箱”,严禁用同一个开关箱直接控制2台及2台以上用电设备(含插座)。
11、文明施工与环水保11.1组织机构为了保证工程安全有序的进行,项目经理部成立文明施工领导小组,具体落实文明施工前的各项准备工作及解决文明施工中的生产问题。
组长:凡春胜、琚兆勇
副组长:亓明、李庆峰、常兴起
组员:肖勇、阳标、张龙、陈卓、潘舒
11.2文明施工措施(1)文明施工目标
全面开展创建文明工地活动,本工程施工全过程中将全面开展创建文明工地活动,切实做到“两通、三无、五必须”。
两通:施工现场人行道畅通;施工工地沿线出入口畅通。
三无:施工中无管线事故;施工现场无积水;施工工地道路平整无坑塘。
五必须:施工区域与非施工区域必须严格分隔;施工现场必须挂牌施工;管理人员必须佩卡上岗;工地现场施工材料必须堆放整齐;工地生活设施清洁文明;施工现场必须严格按规定控制噪音、扬尘和泥浆处理;工地现场必须开展以创建文明工地为主要内容的思想政治工作。
(2)文明施工保证体系
文明施工保证体系由项目经理牵头,常务副经理负责,项目副经理具体落实,技术负责人全部负责技术领导,下属各相关部门通力配合,采取“标准明确,责任到人”的管理目标责任制,将文明施工落到实处。
(3)文明施工保证措施
1)临时道路的修筑与养护
按批准的交通组织要求修建临时道路、护拦、安全指示标志,确保交通畅通。临时便道的养护由路面项目队负责,安排专人进行养护。
施工过程中设专人清扫工地路面,配备洒水车,每天清扫洒水。
根据施工需要修筑施工便道,做到尽量少土地。
2)场地围护设置与整洁管理
施工场地地使用彩瓦夹芯板封闭,并做到连续、稳固、整洁、美观和线形平顺。施工区域的维护设施如有损坏,及时维修,并排专人进行清洁,确保始终处于良好状态。
3)工地宣传及施工标示
在工地四周的围墙、宿舍外墙以及其它允许地方,设置符合业主要求、反映企业精神、展示时代风貌的醒目宣传标语,工地设置宣传栏、黑板报等宣传阵地,及时反映施工动态和项目两个文明建设成果。
在工地的主要出入口设置醒目的施工标牌,标明下列内容:
①工地总平面图
标明工地方位及生产、生活、材料、机械设备的区域,大门进出口、便道以及水电的走向,现场管理标志和宣传标语、横幅布置等。
②工程概况牌
注明工程项目名称、工程主要结构类型和道路总面积、单体结构名称及位置;建设、设计、施工、监理、质量监督和安全监督等单位名称;项目负责人、技术负责人、施工员、质检员、安全员的姓名,开竣工日期和监督电话。
③成品、半成品、原材料的标示
现场材料按施工现场总平面图的要求,合理堆放,分门别类,明确标识出产厂、品名、标号、出厂日期、进库日期、检验试验判定状态等,并存放整齐有序。
④人员标志牌
所有施工人员均佩带胸卡上岗。标示出姓名、担任职务、工种、编号等。
4)施工期间地表排水
施工过程中,场地内布设排水管、排水沟、沉淀池和过滤池,将符合排放标准的施工用水及雨水就近排入河流和沟渠。
5)现场材料、机具管理
施工现场使用的机械设备定点停放、整齐干净,材料堆放按类型、规格、挂牌堆码且整齐有序,需防雨的材料进库存放或加盖防雨布,铺设水管路及电线统一规划,按施工平面图布设。
6)工地卫生
生活区应设置醒目的环境卫生宣传标牌及保洁责任区包干图。现场“五小”设施齐全、设置合理。
除四害要求:防止蚊蝇孳生,同时要落实各项除四害措施,控制四害孳生。生活区内做到排水畅通,无污水外流或堵塞排水沟现象。
宿舍内日常生活用品力求统一并放置整齐,现场办公室、更衣室、厕所等应经常打扫,保持整齐清洁。
生活垃圾要有容器放置并有规定的地点,有专人管理,定时清除。
食堂内整齐清洁,四周场地平整、清洁、没有积水;设密封间和配置纱罩。食物盛器要生熟标记;现场茶水供应、茶具消毒,符合卫生要求;炊事员持有健康证和卫生上岗证,并保持良好的个人卫生习惯。定期检查食堂饮食卫生情况。
现场设医务室,配备各种常用急救药品器材;做好对职工卫生防病的宣传教育工作,针对新冠疫情、季节性流行病、传染病等,利用板报等形式向职工介绍防病、治病的知识和方法;工地上配齐浴室、厕所和饮用水供应点等生活设施,并制订卫生制度,定期进行大扫除,保持生活设施和周围环境整洁卫生。
7)治安措施
建立健全创建治安合格工地领导组织和专设机构以及群防群治的综治网络,从领导和制度上确保创建工作各项指标落到实处。抽调相应的人力、物力和财力,为切实做好创建合格工地活动提供有力的物质保障。
排除一切不安定因素,维护工地政治稳定。项目各级领导深入细致地做好职工队伍的思想政治工作,引导职工群众正确认识和处理各种利益关系,抓住热点、难点问题,搞好教育疏导,及时化解矛盾,千方百计把问题解决在内部,解决在萌芽状态,防止矛盾激化引发群众性闹事事件。
积极参加、配合业主和地方公安机关组织的统一行动,打击各种违法犯罪活动,净化施工现场和周边治安环境。
按照严格审查、严格登记、严格教育、严格管理、严格清退的“五严”要求,切实落实防范、管理措施,促进外部劳务管理步入规范化、制度化轨道。
认真抓好工地文化建设,组织开展丰富多彩的文化娱乐活动,遏制各种丑恶现象在内部和工地的蔓延,促进企业精神文明建设。
加强法制宣传教育,采取多种有效形式,有组织、有计划、有重点、有步骤地宣传法律知识、提高职工群众政治素质、道德水平和法律意识,依法管理企业,依法管理队伍,依法维护企业和个人的正当权益。
强化门卫值班制度,在重点部位安装防盗报警设施,对施工现场的工程材料和重要机械设备固定专人值班看管,责任到人。
根据维护工地治安的需要,进一步加强治安防范队伍建设。建立和充实治安巡逻队、联防队等组织机构队伍,完善制度,搞好培训,严格管理,提高人员素质,发挥组织作用,增强群防群治工作的生机和活力。
加强交通安全和消防管理,有效预防和减少各类治安灾害事故发生。消防工作交通安全管理要以防事故、保安全、促生产为目标,加强对车勤人员的安全教育,落实交通安全责任制,杜绝各类事故的发生。消防工作要严格执行有关安全消防规范,加强防火宣传,落实逐级防火责任制,努力消除各类火灾隐患。
做好内部各项安全防范工作,贯彻“谁主管、谁负责”的原则,搞好治安综合治理,推行治安承包责任制,建立值班、守卫和巡守人员岗位责任制,定期检查评比,兑现奖罚,调动各部门及全体职工的工作积极性,围绕深入开展创建活动,齐抓共管,密切配合,确保治安综合治理工作跨上新台阶。
11.3环水保措施11.3.1环境保护体系建立健全环境保护体系,成立以项目经理为组长的环保领导小组,配备环保专业人员,对施工人员进行环保意识教育,明确本工程环保工作的要点。环境保护体系见下框图。

图11.3-1环境保护体系框图
11.3.2环境保护措施(1)生活、生产用水
施工现场生产、生活用水的排放控制。施工前按实施性施工组织设计建好生产区和生活区排水沟。排水沟的宽度、深度、坡度满足排放要求。分块设置过滤池和沉淀池,所有生活用水和生产用水均经过过滤、沉淀后方可排出。
(2)噪音控制
严格执行《工业企业噪声卫生标准》,控制和降低施工造成的噪音污染。
施工组织采用两班制或三班制作业,使工人每工作日实际接触噪音的时间符合国家卫生部和劳动总局颁发的允许工人日接触噪音时间标准的规定。在强噪音环境下工作的人员必须使用耳机、耳罩等防护用品,减少相关人员在噪声环境中的工作时间,减轻噪声对人体的伤害。
设备选型优先考虑低噪声产品,采取措施或改进施工方法,如采取消声、吸声、隔声、阻尼或安装隔振装置等措施,使施工噪音、振动达到施工场界环境标准。机械设备合理布置,正确安装、固定,减少阻力及冲击振动。
合理布置施工区和办公生活区,利用距离、隔墙使噪声大幅度自然衰减。
出入现场的机械、车辆做到不鸣笛,不急刹车;汽车在等候装渣时开启小油门或停机;加强设备维修,定时保养润滑;并对与施工无关的人员和车辆加以控制,以避免或减少噪音。
在选择施工设施、设备及施工工艺时,采用低噪音设备和工艺代替高噪音设备与加工工艺,在噪声源处安装消声器或消声屏障,尽量减少由此产生的噪音对周围地区居民的影响。在临近居民区施工时中午和夜间(晚上9时至次日早上7时)不进行产生噪音的施工作业。
(3)避免施工扬尘措施
1)在施工作业现场对施工区域进行全封闭分隔。
2)加强建筑材料的存放管理,各类建材定点定位,禁止水泥露天堆放,并采取防尘抑尘措施,如在大风天气对散料堆放采用覆盖防护。
3)运输车辆进出的主干道应定期洒水清扫,保持车辆出入口路面清洁,以减少由于车辆行驶引起的地面扬尘污染。
4)施工中采取有效措施控制粉尘飞扬,避免影响周围居民正常生活、道路交通安全的作业行为。施工现场应覆盖或封闭,以减少扬尘的影响,如覆盖物发生破损,应及时对其进行修补。
5)施工现场的建筑垃圾、工程渣土临时储运场地四周设置一米以上且不低于堆土高度的遮挡围栏,并有防尘、灭蝇和防污水外流等防污染措施。
6)禁止在人口集中地区焚烧沥青、油毡、橡胶、塑料、皮革以及其他有毒有害烟尘和恶臭气体的物资;特殊情况下需焚烧的,须报当地环境保护主管部门批准。
(4)废气治理措施
1)运输、施工作业所使用的车辆均应通过当年机动车尾气检测,并获得合格证。
2)加强对施工机械、运输车辆的维修保养,禁止以柴油为燃料的施工机械超负荷工作,减少烟度和颗粒物排放。
3)施工、运输机动车辆应尽可能使用柴油作为动力燃料,限制含铅汽油的使用。
4)食堂饮食活动产生的油烟气应安装抽排风装置,装置的安装位置应不影响周围居民的生活,油烟气排放应符合当地排放标准。
(5)防止水土流失和废料废方处理
在施工期间应始终保持工地良好排水状态,修建的临时排水渠道与永久性排水设施相连接,且不得引起淤积和冲刷。
采取有效措施,防止施工场地占用的土地或临时使用的土地受到冲刷。
施工中开挖出的土石材料做到有序堆放、运弃,防止对排水系统产生淤积或堵塞。
施工中的临时排水系统,尽量减少水土流失及水文状态的改变。
清理场地的废料废方处理不得影响排灌系统及水利设施,按规定在适当地点设置弃土场,力求少占土地,并结合改地造田。
12、成品及半成品保护措施(1)加强成品保护教育、落实责任制
加强对所有参加施工人员进行成品保护教育,落实成品负责责任制。
1)项目部成立以主管生产经理为组长的施工现场领导小组,负责项目施工的管理和文明施工的成品保护工作。
2)定期对管理和操作人员进行文明施工、成品保护教育,提高职工自觉保护成品的质量意识。
3)经常进行成品保护检查,若发现被撞坏及污染的现象,要及时采取措施进行纠正处理,对责任人给予处罚。
(2)加强现场管理,科学组织施工,减少成品损失
1)编制现场管理和成品保护细则,合理安排施工顺序,避免工序间相互干扰。凡下道工序会对上道工序产生损伤或污染的,须对上道工序采取保护措施,一旦发生损伤或污染,须及时进行处理清除。
2)凡在成品或半成品区域施工,设专人管理,防止被破坏或损伤。
3)现场的钢材、水泥和防水材料等须防止雨淋、日晒和受潮。
4)加工好的材料须分类标识,避免乱堆乱放。
5)混凝土中的预埋件须按设计要求进行防护处理,严格检查,防止生绣、错位、遗漏或损坏。
6)在浇筑混凝土时,不准站在模板或钢筋上振捣,混凝土终凝后,须及时洒水养护。混凝土达到规范或设计要求的强度后才能拆模,已铺好的防水板,须加强保护,不许碰撞或其它硬物接触。
7)模筑混凝土完工后,进行一次全面清扫,在交付使用前专人看守保护。
8)提倡文明作业,严禁野蛮施工,对野蛮施工的行为必须制止,一旦发现,不论是否造成损伤,一律给予处罚。
13、季节性施工技术措施13.1夏季施工(1)夏季施工的特点是气温高,蒸发快,混凝土表面容易产生收缩裂缝。为此应设法防止阳光曝晒减少水份的蒸发,运输混凝土时需覆盖。整个工艺流程要短,及时浇筑、覆盖和湿润养护,尤其是在高温时,更要加强养护,保证质量。
(2)在夏季施工中,应和监理工程师商定,尽量利用下午6时至次日上午10点之间来浇筑,避开高温浇捣。
(3)在高温季节施工时,要准备好足够的覆盖工具,并在必要时采用遮阳棚架设在混凝土施工地段,防止阳光直晒。
(4)高温季节施工应注意操作环境,做好防暑降温措施,工地上设集中茶棚。
13.2雨季施工(1)一般措施
1)充分做好雨季防汛的准备工作,现场应配备充足的排水泵、草袋、防水布等器材。
2)应保持施工现场排水系统畅通和构筑必要的临时排水设施如排水明沟等,降雨时基坑周围应设围堰。
3)雨季期间密切注意天气变化,设置专门人员收听天气预报,及时做好应急措施,事先组织好应急措施,事先组织好应急抢险分队。
(2)雨季混凝土施工的特殊措施
1)浇筑混凝土前应与气象部门作好联系,尽可能避免在大暴雨天气条件下浇筑混凝土。
2)如果浇筑混凝土时下雨,应随雨量大小,随时测定砂石含水量,调整混凝土配合比。
3)现场应准备足够的防雨应急器材(如油布、塑料薄膜等),在振捣密实的同时铺设覆盖材料(如油布、塑料薄膜),尽量避免混凝土遭受雨水冲刷,以保证浇筑质量。
4)做好施工现场的排水和四周的清理工作,防止积水和淤泥。
5)如在施工过程中突遇大暴雨,应做好人员配置,加强施工管理力量;确实无法施工时,可在合理部位留设施工逢,并取得现场监理许可,但应做好施工缝的处理工作。
(3)雨季期间的防雷、防触电、防塌方施工措施
1)做好设备的接零、接地:接地体采用角钢、圆钢或钢管,其截面不小于48平方毫米,一组二根接地体之间间距不小于2.5米,入土深度不小于2.5米,接地电阴应符合规定,电杆转角杆、终端杆及总箱,分配电箱必须有重复接地。
2)施工现场做好避雷措施。
3)施工期间,应加强对基坑结构、及土层的监测。
13.3防汛、防台施工(1)如遇到8级以上风力时,汽车吊、桩机等大型设备停止运行,吊车大臂应放倒;
(2)台风来临前,在项目部防汛防台专项领导小组的组织领导下,积极展开各项工作,准备好充足的各项抗险物资(如钢管、扣件、麻袋、黄沙、水泵等)及充裕的劳动力;在台风期间指派专人24小时值班,一旦有险情发生,及时向领导小组组长汇报,做好事故隐患的预防防治工作。台风来临前对场地内的排水管道及排水沟进行清理,保持畅通;在台风期间,指派专人24小时进行巡视,以保证排水畅通。
14、应急预案及应急响应14.1项目应急组织机构(1)应急救援领导小组
成立以项目经理、常务副经理为组长,项目领导班子为组员的应急救援领导小组。
组长:凡春胜、琚兆勇
副组长:亓明、李庆峰、常兴起
组员:肖勇、阳标、张龙、陈卓、刘鑫
(2)救援职责分工
1)组长(项目经理)职责
负责应急救援工作的启动。负责事故应急行动期间各单位的运作协调,按照应急预案合理部署应急策略,和事故现场指挥者协同工作,保证事故应急救援工作的顺利完成。
2)事故现场指挥者(生产副经理)职责
负责对事故现场的控制,协调应急队员的救援工作,识别危险物质及存在的潜在危险并对事故现场进行分析,执行有效的应急操作,保证应急行动队员的个人安全,并负责事故后的现场清除工作。保持与总指挥的联络。
3)公共关系代表(项目书记)职责
负责在发生紧急情况时与新闻媒体的联系工作,及后勤善后工作。
4)支持人员(经过培训的医疗人员担任)职责
在事故应急期间,接受事故指挥者的调遣,提供各类应急所需的技术支持和医疗支持。
5)信息管理人员(调度)职责
负责接收事故报警信息,并在事故应急期间向事故急救者提供他们所需的信息,负责各应急小组之间的通讯联系,设置专线电话。
(3)应急处理程序

图14.1-1应急处理程序
14.2日常检查和演习(1)日常检查
定期对应急仓库和物资进行检查,防止应急物资被挪用。
(2)应急演练
项目部定期组织人员进行应急演练:
1)演练内容
防汛防台、火灾、人员受伤等。
2)频次
每季度一次。
3)注意事项
①演习要严谨、认真,避免敷衍了事,使演习流于形式;
②演习要具有针对性、及时性,如汛期来临之前,进行防汛防台演练。
14.3重大危险源分析危险源是可能导致人身伤害或疾病、财产损失、工作环境破坏或这些情况组合的危险因素和有害因素。危险因素强调突发性和瞬间作用因素,有害因素强调在一定时期内的慢性损害和累积作用。
表14.3-1危险源分析
序
危险源
危险因素
可能导致的事故
1
火灾、爆炸
易燃物存放不对,氧气乙炔位置摆放不对
发生火灾、爆炸
2
起重吊装作业
模板安拆
高坠事故
3
钢筋制安
钢筋掉落
高坠事故
4
施工用电
未按批准线路及时间搭线
触电事故
电工违规操作
用电设备、设施及线路未做有效警示与防护
认为破坏及维护不到位
保护器失灵
特殊工种无证上岗
线路搭接处包裹不规范
未严格执行“三相五线制”
14.4应急救援措施14.4.1起重吊装安全应急预案(1)高空坠物
起重伤害事故发生后,应立即对事故现场进行踏勘,事故现场情况明了的,即可确定失落人员情况;若事故现场情况不明了,有其它不可视区域,应急组织机构应立即组织各部门、班组、作业队负责人对施工现场所辖人员进行清点,确定有无失落员,清点结果报于应急总指挥。
(2)机体毁坏事故
起重吊装发生机体损毁事故后,应急指挥部应根据机体损毁部位,确定是否有次生事故发生,若有次生事故发生的可能,疏散警戒组应立即疏散现场人员撤离危险区域,防止发生爆炸或燃烧事故进一步造成人员伤害或引发火灾,疏散警戒组待人员撤离后应设置警戒区域并防止人员进入,同时,善后处理组立即向专家组进行报告,请求救援,待专业人士到场进一步进行处理。
14.4.2火灾、爆炸等消防应急预案(1)防火要求
1)电工,电焊工从事电气设备安装和电焊、气焊切割作业,须持证上岗,在进行动火作前必须进行动火审批。须在动火证,并须清除附近的易燃物。
2)使用电气设备和易燃、易爆物品,必须有严格的防火措施,指定防火负责人,并配备足够的灭火器材,确保施工的安全。
3)临建设施须有防火要求,不得使用易燃材料。
4)施工材料的存放、保管,必须符合防火安全要求;对易燃、易爆物品须设专库分类单独存放,不得混杂堆放,仓库符合防火规定。
5)在施工过程中须坚持防火安全交底制度;在进行电焊、气焊作业时,现场配有防火器材。
6)氧气瓶、乙炔瓶工作距离不得小于5米,两瓶同明火距离不得小于10米。
(2)消防安全技术要求
1)电气设备
①机械和动力设备的基座必须稳固,转动的危险部位须有防护装置;
②电气设备和线路必须绝缘良好,电线不得与金属物绑在一起;各种电动机具必须按规定接零或接地,保证“一机、一闸、一漏保”,在休息和停止作业时,施工机具必须切断电源,开关箱必须上锁。
2)电焊工程
①电焊机的外壳,必须有良好的接下地,其电源的拆安须由电工进行,不得随意乱接。
②焊钳和把线必须绝缘良好,连接牢固,更换焊条时必须戴手套;在潮湿的地方作业时,必须站在绝缘板上。
③把线、地线禁止与钢丝绳接触,不得用钢丝绳或其它电缆代替零线,所有的零线接头必须连接牢固。
④工作结束时,须切断电源,并检查操作点,确认无起火危险后,才能离开。
3)气焊工程
①气焊操作人员必须遵守使用危险用品的有关规定。
②乙炔瓶必须放在空气流通的地方,不得放要高压线下面,不得在太阳下曝晒;在使用时必须直立固定,不得卧放。
③施工现场附近不得有易燃、易爆物品。
④安全装置必须经常检查和维修,防止露气,严禁气路沾油,防止发生火灾危险。
⑤工作完,按操作规程并关闭氧气、乙炔,检查操作场地,确认无着火危险后,才能离开。
(3)消防措施
1)施工现场建立义务的消防组织,设消防值班人员,对进入施工场的作业人员进行消防知识教育,建立现场安全用火制度。
2)施工现场划分用火作业区,易燃易爆材料区、生活区,并按规定保持防火距离。
3)现在内设有车辆通道,路宽不得小于3.5米,不得在通道内堆放材料。
4)材有专人保管和定期检查。
5)各类电气设备线路不得超负荷使用。
(4)发生火灾及爆炸时的应急措施
1)在施工现场,发生火灾时,最先发现火灾的人员,须立即报告项目部领导或消防组织小组。同时,必须立即组织人员进行抢救,如火势过大而不能控制时,立即拨打119火警,请消防部门协助灭火。
2)火灾发生后,各级人员须保持镇静和泠静,切实负起本身的责任,主动控制局面,须有组织的进行抢救。
3)如果发生电气火灾时,必须先切断电源,同时不得采用消防水或泡沫灭火器进行灭火,必须用四氯化碳或沙包,防止火灾进一步扩大。
4)如果发生油类火灾时,必须先将其它易燃、易爆物品转移至安全地带,然后用四氯化碳灭火器或用沙覆盖来进行灭火,不得采用水或其它灭器材进行灭火。
5)如果发生的火灾有可能会引起爆炸,须立即疏散人员,同时,报火警,请求消防部门灭火,必须向上级部门报告。
6)火灾发生后,如有人员被困,须立即组织人抢救,如有受伤人员,立即将伤者送至与出事地点最近的医院或拨打120急救电话。
7)事故发生后,项目部须组织进行事故原因分析,填写事故调查报告,认真分析原因,提出预防措施。
14.4.3防汛防台应急预案(1)项目部派专人认真收听当地天气预报或拨打天气查询电话,及时通报天气情况,提前做好防迅准备。
(2)在施工现场备足抢险材料、机具,如水泵、木材、沙包,在进出口位置用沙包围起来,防止雨水灌入。
(3)仔细检查施工现场、基坑内地质条件较差的地方、基坑附近有管线或电缆沟的地方,发现因下暴雨导致易坍塌的地方用沙包或其它材料加固。
(4)加强对施工现场的排水,检查下水道及排水设施的情况,保证在暴雨季节的排水畅通及基坑内不积水。必要时可增加排水沟。
(5)将基坑内或隧道内的施工机具转移,避免在下暴雨时被水淹没。
(6)仔细检查施工现场内的电器设备、电缆情况,如发现电缆被水淹或因局部坍塌而导致电缆断开,须先将电源总闸断开,立即处理。
(7)做好整个施工现场的保护接地工作,同时,对施工现场的建筑物设置可靠的防雷装置。避免被雷击。
(8)仔细检查施工现场的材料库,如水泥库,避免因漏水而造成不必要的损失。
14.4.4高处坠落事故预防及应急预案在施工过程中,高空作业较多,在四边临空的高处作业,施工条件差,危险因素多。为避免发生高处坠落事故,必须加强对施工现场的管理,对职工进行预防高处坠落的技术知识教育,使他们熟悉操作时必须使用的工具和防护用具。同时,在技术上采取有效的防护措施。
(1)防高处坠落措施
1)凡身体不适合从事高处作业的人员不得进行高处作业;从事高处作业的人员要按规定进行定期体检。
2)严禁穿硬塑料底等易滑、高跟鞋。
3)作业人员严禁互相打闹,以免失足发生坠落危险。
4)进行悬空作业时,应有牢固的立足点并正确系挂安全带。
5)基坑周边必须设置1.2米高并且能承受任何方向的1000N外力的临时护拦,护拦围密目式(2000目)安全网。
6)各种架子搭好后,项目经理部必须组织架子工和使用的班组共同检查验收,验收合格后,方准上架操作。使用时,特别是台风暴雨后,要检查架子是否稳固,发现问题及时加固,确保使用安全。
(2)发生高处坠落事故应急预案
1)发生高处坠落事故,应立即组织抢救伤者,首先观察伤者的受伤情况、部位、伤害性质,如伤员发生休克,应先处理休克;遇呼吸、心条停止者,应立即进行人工呼吸,胸外心脏挤压;处于休克状态的伤员要让其安静、保暖、平卧、少动,并将下肢抬高约20度左右,尽快送医院进行抢救治疗。
2)出现颅脑损伤,必须维持呼吸道畅通;昏迷者应平卧,面部转向一侧,以防舌根下坠或分泌物、呕吐物吸入,发生喉阻塞;有骨折者,应初步固定后搬运。
3)发现脊椎受伤者,创伤处用消毒的纱布或清洁布等覆盖伤口,用绷带或布条包扎后,将伤者平卧放在帆布担架或硬板上,以免受伤的脊椎移位、断裂造成截瘫,招致死亡;抢救脊椎受伤者,搬运过程中,严禁只抬伤者的两肩与两腿或单肩运行。
4)遇到有创伤性出血的伤员,应迅速包扎止血,使伤员保持在头低脚高的卧位,并注意保暖;一般伤口小的止血先用盐水(0.9%NaCl溶液)冲洗伤口,涂上红汞水,然后盖上消毒纱布,用绷带较紧的包扎。
5)动用最快的交通工具或其他措施,及时把伤者送往邻近医院抢救,运送途中应尽量减少颠簸;同时应密切注意伤者的呼吸、脉搏、血压及伤口的情况。
14.4.5发生触电事故应急预案触电事故和其他事故比较,其特点是事故的预兆性不直观、不明显,而事故的危害性非常大。当流经人体电流小于10mA时,人体不会产生危险性的病理生理效应;但当流经人体的电流大于10mA时,人体将会产生危害性的病理生理效应,并随着电流的增大、时间的增长将会产生心室纤维性颤动,乃至人体窒息(“假死”状态),在瞬间或两三分钟内就会夺取人的生命。因此在保护设施不完备的情况下,人体触电伤害事故是极易发生的。所以施工中必须做好预防工作,发生触电事故时要正确处理,抢救伤者。
(1)防止触电伤害的基本要求
1)施工用电须制定独立的施工组织设计,并经项目部技术负责人审批,盖有项目的公章;必须按施工组织设计进行铺设,竣工后办理验收手续。
2)一切线路铺设必须按技术操作规程进行,按规范要求保持安全距离,距离不足时,应采取有效措施进行隔离保护。
3)非电工严禁接、拆电气线路、插头、插座、电气设备、电灯等。
4)带电体之间、带电体与地面之间、带电体与其他设备之间、工作人员与带电体之间必须保持足够的安全距离,距离不足时,应采取有效的措施进行隔离防护。
5)在有触电危险的处所或容易产生误判断、误操作的地方,以及存在不安全因素的现场,设置醒目的文字或图形标志,以提醒人们识别、警惕危险因素。
6)采取适当的绝缘防护措施将带电导体封护或隔离起来,使电气设备及线路能正常工作,防止人身触电。
7)采取适当的保护接地措施,将电气装置中平时不带电,但可能因绝缘损坏而带上危险的对地电压的外露导电部分(设备的金属外壳或金属)与大地作电气连接,减轻触电的危险。
8)施工现场供电必须采用TN-S的三相五线的保护接零系统,把工作零线和保护零线区分开,通过保护接零作为防止间接触电的安全技术措施,同一工地不能同时存在TN-S两个供电系统。注意事项如下:
①在同一台变压器供电系统中,不得将一部分设备做保护接零,而将另一部分设备做保护接地。
②采用保护接零系统,总电房配电柜两侧做重复接地,配电箱(二级)及开关箱(三级)均应做重复接地,其工作接地装置必须可靠,接地电阻值≤4Ω。
③所有振动设备的重复接地必须有两个接地点。
④保护接零必须有灵敏可靠的短路保护装置配合。
⑤电动机设备和机具实行一机一闸一漏保一箱保护,严禁一闸多机,闸刀开关选用合格的熔丝,严禁用铜线或铁丝代替保险熔丝;按规定选用合格的漏电保护装置并定期进行检查。
(2)发生触电事故的应急措施
1)触电急救的要点是动作迅速,救护得法,切不可惊慌失措,束手无策。要贯彻“迅速、就地、正确、坚持”的触电急救八字方针;
2)脱离电源的基本方法
①将出事附近电源开关拉掉、或将电源插头拔掉,以切断电源。
②用干燥的绝缘不棒、竹竿、布带等物体将电源线从触电这身上拨离或者将触电者拨离电源。
③必要时可用绝缘工具(如带有绝缘柄的电工钳,木柄斧头以及锄头)切断电源。
④救护人员必须戴上手套或在手上包缠干燥的衣服、围巾、帽子等绝缘物品拖拽触电者,使之脱离电源。
⑤如果触电者触及断落在地上的带电高压导线,且尚未确证线路无电之前,救护人员不可进入断线落地点8至10米的范围内,以防止跨步触电危险。
3)在触电者脱离电源时应注意的事项
①救护人不得采用金属和其它潮湿的物品作为救护工具。
②未采取绝缘措施前,救护人不得直接触及触电者的皮肤和潮湿的衣服。
③严禁救护人用手直接用手拉、推和触摸触电者,救护人员不得采用金属或绝缘性差的物体作为救护工具。
④夜间发生触电事故时,应考虑切断电源后的临时照明问题,以利救护。
⑤当触电者位于高位时,须采取措施预防触电者在脱离电源后发生电击二次伤害事故。
4)触电者未失去知觉的救护措施:应让触电者在比较干燥、通风暖和的地方安静卧休息,并派人严密观察,同时请医生前来或送往就近医院救治。
5)者脱离电源后,须立即将其施工在杉木板或松木板上休息,不得放在金属板上。
14.4.6突发事件应急处理程序在紧急情况发生的最初阶段,要通过报警装置迅速通知现场作业以及有可能遭受危险的附近作业人员,并尽快报告有关部门。
发生事故后,现场负责人要首先采取措施加以控制,避免事故的扩大,当有可能对抢险人员或其他作业人员构成威胁时,应优先撤离人员。
除重大火灾事故需要拨打119通知消防部门进行灭火或拨打120急救电话进行人员急救等特殊情况外,其他事故应马上通知经理部,由经理部向上级及其他相关部门报告,以最大程度地缩小事故的影响面。
突发性事件发生后,由项目部领导通知各相关部门,包括业主、施工单位、设计方、监理方等主管领导,组成事故处理领导小组,制定处置方案,同时宣布启动应急预案,组织项目的应急预案小组进入事故处理程序。
当紧急情况发生时,由班组应急联络员立即向专职应急联络员报告;专职应急联络员立即向质量、安全部报告,并做出相应反应;质量、安全部随即向经理部领导汇报,并组织人员马上赶往现场;经理部领导赶到现场在听取专职应急联络员初步分析事故原因后,根据现场实际情况进一步分析事故原因,制定相应处理办法。





