
本案从视觉效果出发,由外部延及内里的“精致主义“,需以消解过渡带的繁复性来完成。于是设计以统一的净色作底,减少装饰数量,从而呈现一种低饱和的空间维度。





大片的落地开窗,引入光这一软性元素,晨霭亦或落日,流动的光线汇聚成时间的轨迹,游走于圆柱体量之上。于是,空间的静态成为具象的画面,最终附着于实体的感官。



界定素雅,意味着挣脱其对立属性的禁锢,将简约的意向抽离,置入空间的各个角落,而不抛却原有的实用特性。



饮食功能区采用餐厨分离设计,延长的中岛可置物小聚,其横向结构与背部立面相互融合,成为引导空间走向的廊道。



延长的廊道,保证公区开阔的同时,亦是处理动静分区的手法。





相对独立的卧房区间,更大程度上提高了休憩空间的私密性与舒适度。




循级而上,空间的路径依次展开,纵横的结构起势,由几何的块状平面切割而成。石材赋予的厚重感被轻盈如羽毛的乳白色调消解,使之构成理想的平衡状态。



以玻璃为媒介引光入室,作为地下二层,更需要光影眷顾,从而产生持于平面的体验感。
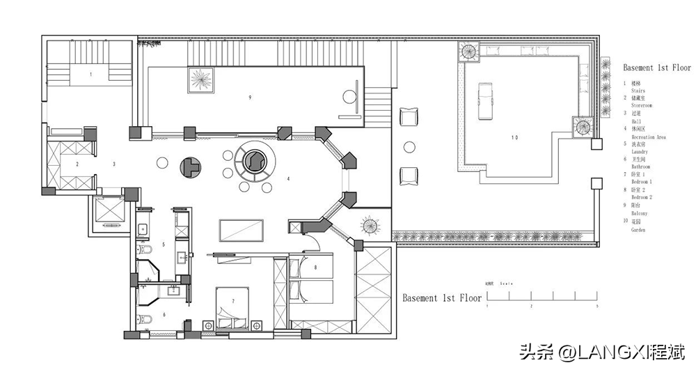
平面图








![打包机生产厂家,打包机生产厂家大全[2023朂新更新] 打包机生产厂家,打包机生产厂家大全[2023朂新更新]](/imgs/baidou-v2/upload/2025/05/19/08/1712887015265365.jpeg)